
TWE-Immobilien Thomas Erthle e. K.
Frau Mya-Melissa Jahic
+49 ···
Nr. anzeigenPreise & Kosten
Provision für Käufer
Bitte beachte, das Angebot kann bei Vertragsabschluss die Zahlung einer Provision beinhalten. Weitere Informationen erhältst Du vom Anbieter.
Lage
Die Doppelhaushälfte befindet sich im familienfreundlichen Ortsteil Wittlingen von Bad Urach. Die ruhige Wohnlage kombiniert naturnahes Wohnen mit einer guten Infrastruktur. Auch perfekt für Pendler zwischen Stuttgart und Ulm.
Wittlingen bietet mit Kindergarten und Grundschule ideale Voraussetzungen für junge Familien...
Das Haus
Kategorie
Doppelhaushälfte
Baujahr
1930
Bezug
sofort
Energie & Heizung
Warum sehe ich diese Anzeige? – Du siehst diese Anzeige basierend auf Ihrer Navigation auf unserer Website und den Suchkriterien, die du verwendet hast.
Weitere Energiedaten
Haustyp
Massivhaus
Energieträger
Öl
Heizungsart
Zentralheizung
Details
Objektbeschreibung
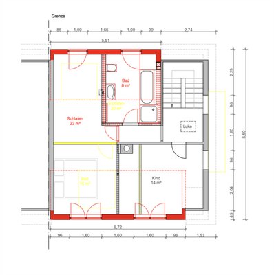
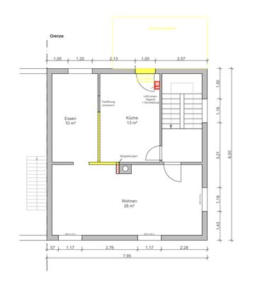
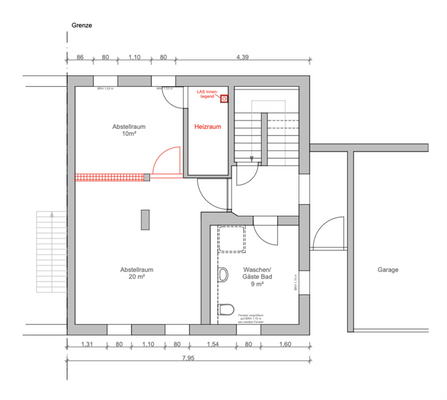
Diese charmante Doppelhaushälfte in Bad Urach Wittlingen überzeugt mit ca. 146 m² Wohnfläche, verteilt auf 5 Zimmer und bietet somit ausreichend Platz für die ganze Familie. Das Haus steht auf einem großzügigen Grundstück mit ca. 536 m² und verbindet komfortables Wohnen mit vielfältigen Nutzungsmöglichkeiten.
Im...
Ausstattung
- Erdgeschoss mit Abstell-/Nutzraum
- Badezimmer mit integrierter Waschküche im Erdgeschoss
- moderne Einbauküche
- Gewölbekeller
- Garten in Südhanglage
- Gartenhaus
- Doppelgarage mit Möglichkeit zum Anschluss für E-Autos
- Teich
- Ölheizung und Solarthermie (Bj. 2011)
- ruhige...
Preisinformation
2 Garagenstellplätze
Weitere Informationen
Sonstiges
Die Immobilie wird zum 01.04.2026 frei und eignet sich ideal für Familien mit Platzbedarf sowie für Käufer, die zusätzliches Ausbaupotenzial schätzen.
Gerne präsentiere ich Ihnen diese besondere Doppelhaushälfte im Rahmen einer persönlichen Besichtigung und freue mich auf Ihre Anfrage.
Ein...
Anbieter der Immobilie
Online-ID: 2n4jv5t
Referenznummer: 3800 (1/3800)
Finde Angebote wie dieses
Hier geht es zu unserem Impressum, den Allgemeinen Geschäftsbedingungen, den Hinweisen zum Datenschutz und nutzungsbasierter Online-Werbung.