

DER IMMO TIP Vermittlung von Immobilien GmbH
Herr Christian Müller
035 ···
Nr. anzeigenPreise & Kosten
Provision für Käufer
provisionsfrei
Lage
Das Grundstück befindet sich in Dresden Omsewitz, nahe des Landschaftsschutzgebietes Zschonergrund mit dem Zschonergrundbad und der Zschonermühle.
Omsewitz ist ein idyllischer Stadtteil im Westen von Dresden, der durch seine ruhige und naturnahe Atmosphäre besticht. Der Stadtteil ist geprägt von einer Mischung aus...
Die Wohnung
Wohnungslage
2. Geschoss
Wohnanlage
Energie & Heizung
Warum sehe ich diese Anzeige? – Du siehst diese Anzeige basierend auf Ihrer Navigation auf unserer Website und den Suchkriterien, die du verwendet hast.
Energieausweistyp
Bedarfsausweis
Gebäudetyp
Wohngebäude
Wesentliche Energieträger
LUFTWP
Gültigkeit
bis 10.01.2032
Effizienzklasse
A+
Endenergiebedarf
18,40 kWh/(m²·a)
Weitere Energiedaten
Heizungsart
Fußbodenheizung, Luft-/Wasser-Wärmepumpe
Details
Objektbeschreibung
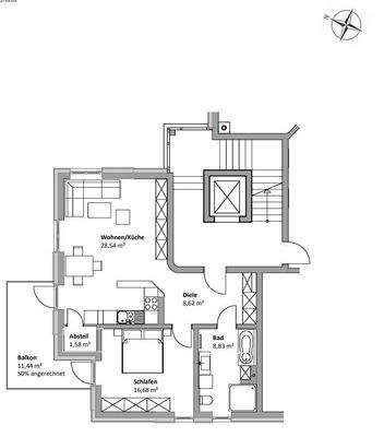
Zum Verkauf steht eine moderne ca. 68 m² große Zweizimmerwohnung mit Balkon im 2. Obergeschoss eines geplanten dreigeschossigen Mehrfamilienhauses mit insgesamt sechs Wohneinheiten. Das Neubauprojekt entsteht auf einem ca. 980 m² großen Grundstück.
Das Gebäude wird so gebaut, dass die Bundesförderung für effiziente...
Ausstattung
* Beheizung des Gebäudes über 2 Luftwärmepumpen
* jede Wohnung verfügt über einen Balkon oder Terrasse (teilweise mit eigener Grünfläche)
* Personenaufzug in alle Etagen
* Tageslichtbäder mit Wanne und Dusche
* Abstellraum für jede Wohnung im Dachgeschoss
* Wäschetrockenraum im Dachgeschoss
*...
Preisinformation
1 Stellplatz, Kaufpreis: 18.000,00 EUR
2 Stellplätze, Kaufpreis je: 3.000,00 EUR
Weitere Informationen
Sonstiges
Der Energieausweis befindet sich in Erstellung.
Hinweis: Fehlende Angaben zum Energieausweis gemäß Energiesparverordnung 2014 ( EnEV ) begründen sich durch Nichtangabepflicht bei Denkmalschutzobjekten, Grundstücken, nichtbeheizbaren Immobilien oder wurden bisher trotz Aufforderung gegenüber dem...
Anbieter der Immobilie
DER IMMO TIP Vermittlung von Immobilien GmbH
Semperstr. 1, 01069 Dresden

Online-ID: 2n4gv5k
Referenznummer: 64484_20
Finde Angebote wie dieses
Hier geht es zu unserem Impressum, den Allgemeinen Geschäftsbedingungen, den Hinweisen zum Datenschutz und nutzungsbasierter Online-Werbung.