
Hettinger & Licence UG (haftungsbeschränkt)
098 ···
Nr. anzeigenPreise & Kosten
Provision für Käufer
3,57 % inkl. MwSt.
3,57 % inkl. MwSt. sind für den Käufer zu zahlen. Der Betrag wird nach Beurkundung des notariellen Kaufvertrages zur Zahlung an den Makler fällig
Lage
Die Immobilie befindet sich im Ortsteil Greuth, einem gewachsenen Dorf der Gemeinde Castell, eingebettet in die Weinlandschaft Frankens. Die Umgebung ist geprägt von landwirtschaftlichen Flächen, Weinbergen und der Natur des Steigerwaldvorlandes. Spazier- und Radwege beginnen direkt vor der Haustür.
Greuth bietet ein...
Das Haus
Baujahr
1937
Energie & Heizung
Warum sehe ich diese Anzeige? – Du siehst diese Anzeige basierend auf Ihrer Navigation auf unserer Website und den Suchkriterien, die du verwendet hast.
Energieausweistyp
Bedarfsausweis
Gebäudetyp
Wohngebäude
Wesentliche Energieträger
Holzpellets
Gültigkeit
20.05.2025 bis 19.05.2035
Effizienzklasse
H
Endenergiebedarf
419,00 kWh/(m²·a)
Weitere Energiedaten
Energieträger
Pellets
Heizungsart
offener Kamin
Details
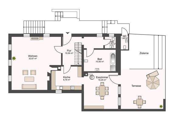
Objektbeschreibung
Haus mit großem Grundstück und Scheune im Herzen von Greuth (Castell)
Inmitten ländlicher Idylle befindet sich dieses Anwesen mit großzügigem Grundstück und Scheune im Herzen von Greuth bei Castell. Die ruhige, naturnahe Umgebung bietet viel Raum zur Verwirklichung individueller Wohnträume. Ob großzügiges Familienleben...
Preisinformation
4 Stellplätze
Weitere Informationen
Sonstiges
Lassen Sie sich diese Gelegenheit nicht entgehen und vereinbaren Sie noch heute einen Besichtigungstermin. Wir freuen uns darauf, Ihnen dieses wunderbare Haus in Greuth näher vorzustellen.
Wir freuen uns auf Ihre Anfrage!
Stichworte
Garage vorhanden, Stellplatz vorhanden, Anzahl der Schlafzimmer: 3...
Anbieter der Immobilie
Online-ID: 2n4f75k
Referenznummer: WE-1155 WE-JS-1155
Finde Angebote wie dieses
Hier geht es zu unserem Impressum, den Allgemeinen Geschäftsbedingungen, den Hinweisen zum Datenschutz und nutzungsbasierter Online-Werbung.