
IGF Immobilien Immobiliengesellschaft Friedrichs mbH
Frau Carola Stark
Kontaktiere den Anbieter schriftlich, es ist keine Telefonnummer hinterlegt.
Preise & Kosten
Provision für Käufer
provisionsfrei
Lage
Diese Wohnung liegt im beliebten Stadtteil Elmschenhagen und befindet sich wenige Gehminuten vom Wellsee entfernt.
Einkaufsmöglichkeiten und alle Dinge des täglichen Bedarfs sind bequem per Rad oder zu Fuß erreichbar.
Die Wohnung
Wohnungslage
Erdgeschoss
Bezug
sofort
Derzeitige Nutzung
frei
Wohnanlage
Energie & Heizung
Warum sehe ich diese Anzeige? – Du siehst diese Anzeige basierend auf Ihrer Navigation auf unserer Website und den Suchkriterien, die du verwendet hast.
Energieausweistyp
Bedarfsausweis
Gebäudetyp
Wohngebäude
Baujahr laut Energieausweis
2021
Wesentliche Energieträger
Fernwärme
Gültigkeit
26.06.2021 bis 25.06.2031
Effizienzklasse
B
Endenergiebedarf
56,00 kWh/(m²·a)
Weitere Energiedaten
Energieträger
Fernwärme
Heizungsart
Fußbodenheizung, Zentralheizung
Details
Objektbeschreibung
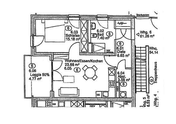
Diese gemütliche barrierearme Erdgeschosswohnung mit toller Ausstattung verfügt über 2 Zimmer, ein modernes Duschbad mit bodentiefer Dusche, Glasabtrennung und Fenster. Im Wohnzimmer ist die moderne Einbauküchenzeile (mit Ceran, Ofen, Dunstabzug, Geschirrspüler und Kühlgefrierkombi) integriert. Von hier gelangt man auf den...
Weitere Informationen
Sonstiges
Wir freuen uns über Ihre Anfrage inkl. aller Kontaktdaten über das Immowelt-Portal und werden uns schnellstmöglich bei Ihnen melden, um Fragen zu beantworten oder einen Besichtigungstermin abzustimmen.
Unser Angebot basiert auf Angaben Dritter (Eigentümer, Behörden, etc.). Aus diesem Grund kann keine...
Anbieter der Immobilie
IGF Immobilien Immobiliengesellschaft Friedrichs mbH
Am Dörpsdiek 1 - 3, 24109 Melsdorf
Frau Carola Stark
Dein Ansprechpartner
Kontaktiere den Anbieter schriftlich, es ist keine Telefonnummer hinterlegt.
Online-ID: 2n4f55h
Referenznummer: 12022026-5
Finde Angebote wie dieses
Hier geht es zu unserem Impressum, den Allgemeinen Geschäftsbedingungen, den Hinweisen zum Datenschutz und nutzungsbasierter Online-Werbung.