

Berge Immobilien e.K.
Herr Nico Berge
015 ···
Nr. anzeigenPreise & Kosten
Provision für Käufer
3,57% inkl. der gesetzlichen MwSt.
Lage
Ihr neues Zuhause finden Sie erhöht in einer Sackgasse in direkter Feldrandlage.
Durch die Hanglage wohnen Sie etwa 2 Meter oberhalb des Straßenniveaus und genießen inkl. Ihres ebenerdigen Gartens eine ganz besondere Privatsphäre - hier schaut Ihnen niemand beim Essen zu!
Das Schöne: in dieser Sackgasse haben Sie...
Das Haus
Kategorie
Einfamilienhaus
Baujahr
1970
Bezug
sofort
Energie & Heizung
Warum sehe ich diese Anzeige? – Du siehst diese Anzeige basierend auf Ihrer Navigation auf unserer Website und den Suchkriterien, die du verwendet hast.
Energieausweistyp
Bedarfsausweis
Gebäudetyp
Wohngebäude
Baujahr laut Energieausweis
1970
Wesentliche Energieträger
OEL
Gültigkeit
bis 06.05.2030
Effizienzklasse
D
Endenergiebedarf
108,50 kWh/(m²·a)
Weitere Energiedaten
Energieträger
Öl
Heizungsart
offener Kamin, Zentralheizung
Details
Objektbeschreibung
Sie suchen schon immer DAS Zuhause?
Das Zuhause für Sie und Ihre ganze Familie, eigene Eltern oder Großeltern eingeschlossen?
Dann bekommen Sie hier Ihr neues Zuhause der Superlative geboten, wo Sie Wohnen und Urlaub vereinen können, denn: hier will man so schnell nicht mehr weg - erst recht nicht wenn Sie den...
Ausstattung
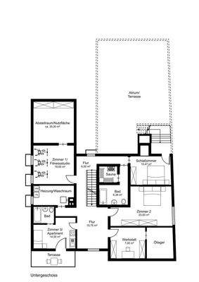
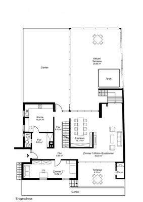
--->1-2 Familien-Haus (342qm inkl. anteilige Terrassenflächen):
momentan wird das EG + UG von den Eigentümern selbst genutzt. die Einliegerwohnung im OG steht leer.
-EG: Wohnzimmer, Esszimmer, Küche, Büro, Gäste-WC, Zugang zur Nord- und Südterrasse
-UG: 2x Schlafzimmer, 2x Badezimmer, Sauna, 3x Zimmer als...
Preisinformation
2 Garagenstellplätze
Weitere Informationen
Stichworte
Nutzfläche: 57,46 m², Anzahl der Schlafzimmer: 5, Anzahl der Badezimmer: 4, Anzahl der separaten WCs: 2, Anzahl Balkone: 2, Anzahl Terrassen: 3, Anzahl der Wohneinheiten: 3, 3 Etagen, modernisiert
Sonstiges/Wohnen: Einliegerwohnung
Anbieter der Immobilie
Berge Immobilien e.K.
Kunoldstraße 29, 34131 Kassel

Online-ID: 2n4da5s
Referenznummer: 252537
Finde Angebote wie dieses
Hier geht es zu unserem Impressum, den Allgemeinen Geschäftsbedingungen, den Hinweisen zum Datenschutz und nutzungsbasierter Online-Werbung.