
Brau & Friedrich Immobilien
Herr Johannes Lichtenstern
004 ···
Nr. anzeigenPreise & Kosten
Provision für Käufer
provisionsfrei
Lage
Makrolage
Die Immobilie befindet sich in der Großen Kreisstadt Fürstenfeldbruck im Westen der Metropolregion München. Mit rund 38.000 Einwohnern ist Fürstenfeldbruck das wirtschaftliche und kulturelle Zentrum des gleichnamigen Landkreises. Der Standort verbindet die Nähe zur Landeshauptstadt mit einer hohen Wohn- und...
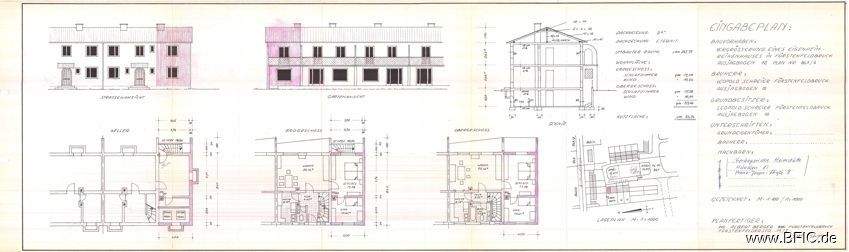
Das Haus
Kategorie
Reihenendhaus
Baujahr
1960
Derzeitige Nutzung
vermietet
Energie & Heizung
Warum sehe ich diese Anzeige? – Du siehst diese Anzeige basierend auf Ihrer Navigation auf unserer Website und den Suchkriterien, die du verwendet hast.
Energieausweistyp
Verbrauchsausweis
Gebäudetyp
Wohngebäude
Baujahr laut Energieausweis
2019
Wesentliche Energieträger
GAS
Gültigkeit
bis 28.10.2035
Effizienzklasse
D
Endenergieverbrauch
118,50 kWh/(m²·a)
Weitere Energiedaten
Energieträger
Gas
Details
Objektbeschreibung
Reihenendhaus in Fürstenfeldbruck - Kapitalanlage mit solider Vermietung
Zum Verkauf steht ein gepflegtes Reihenendhaus in Fürstenfeldbruck. Das Haus wurde 1960 errichtet, 1966 erweitert und im Jahr 2019 umfassend modernisiert. Im Zuge der Sanierung wurden unter anderem die Fenster, die Elektroinstallationen sowie die...
Preisinformation
Ist-Mieteinnahmen pro Jahr: 20.160,00 EUR
Weitere Informationen
Stichworte
Nutzfläche: 42,00 m², Anzahl der Schlafzimmer: 2, Anzahl der Badezimmer: 1, Anzahl der separaten WCs: 1, Anzahl Terrassen: 1, Balkon-Terrassen-Fläche: 20,00 m², Bundesland: Bayern, 2 Etagen
Anbieter der Immobilie
Online-ID: 2n4d55n
Referenznummer: UV784
Finde Angebote wie dieses
Hier geht es zu unserem Impressum, den Allgemeinen Geschäftsbedingungen, den Hinweisen zum Datenschutz und nutzungsbasierter Online-Werbung.