
AS Grundbesitz & Beteiligungen GmbH
Frau Valeria Roszoha
017 ···
Nr. anzeigenPreise & Kosten
Provision für Käufer
provisionsfrei
Abschreibung/Anlage
als Kapitalanlage geeignet
Lage
Die moderne 3-Zimmer-Wohnung befindet sich im Baugebiet Sessenreuther Höhe in Wirsberg – einer bevorzugten Wohnlage für alle, die naturnahes Leben mit guter Infrastruktur verbinden möchten.
Einkaufsmöglichkeiten, Ärzte, Schulen sowie vielfältige Freizeit- und Erholungsangebote befinden sich in der näheren Umgebung – ideal...
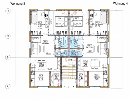
Die Wohnung
Wohnungslage
Erdgeschoss
Bezug
sofort
Derzeitige Nutzung
frei
Wohnanlage
Energie & Heizung
Warum sehe ich diese Anzeige? – Du siehst diese Anzeige basierend auf Ihrer Navigation auf unserer Website und den Suchkriterien, die du verwendet hast.
Weitere Energiedaten
Heizungsart
Fußbodenheizung, Luft-/Wasser-Wärmepumpe, Zentralheizung
Details
Objektbeschreibung
Nutzen Sie jetzt Ihre Chance auf eine exklusive Wohnung zum Frühkäuferpreis. Die Anzahl der Wohneinheiten ist bewusst auf nur vier Einheiten begrenzt – für maximale Privatsphäre und Werthaltigkeit.
In ruhiger und begehrter Wohnlage von Wirsberg (Vorderer Steig) entsteht eine moderne, hochwertig geplante Wohnanlage, die...
Ausstattung
Ihre Vorteile auf einen Blick
- offener Grundriss -> Individuelle Raumaufteilung
- Nachhaltiges Effizienzhaus mit moderner Wärmepumpe
- Förderfähig nach KfW-40-Standard
- Hochwertige italienische Design-Materialien
- Fußbodenheizung in allen Räumen
- Private Gartenanteile für maximale Privatsphäre
-...
Weitere Informationen
Besonders attraktiv für Kapitalanleger – Sonder-AfA nach § 7b EStG
Dank der attraktiven Quadratmeterpreise erfüllen die Wohnungen die Voraussetzungen für die Sonderabschreibung nach § 7b EStG und ermöglichen zusätzlich zur regulären AfA eine deutlich erhöhte steuerliche Abschreibung in den ersten...
Dokumente
Anbieter der Immobilie
AS Grundbesitz & Beteiligungen GmbH
Am Heidenknock 10, 95326 Kulmbach
Online-ID: 2n4cy5q
Finde Angebote wie dieses
Hier geht es zu unserem Impressum, den Allgemeinen Geschäftsbedingungen, den Hinweisen zum Datenschutz und nutzungsbasierter Online-Werbung.