
frb Immobilien - Frank Rudolf Braun
Selbst. Vertriebspartner Herr Degen
+49 ···
Nr. anzeigenPreise & Kosten
Kaution
5040,- €
Provision für Mieter
2,38 Monatskaltmieten inkl. MwSt.
Die Maklerprovision errechnet sich durch Multiplikation einer Monatskaltmiete mit dem Faktor 2,38 (dies entspricht 2 Monatskaltmieten zzgl. 19% MwSt.) und ist vom Mieter zu zahlen.
Warum sehe ich diese Anzeige? – Du siehst diese Anzeige basierend auf Ihrer Navigation auf unserer Website und den Suchkriterien, die du verwendet hast.
Lage
1B-Lage
Das Büro- oder Praxisgebäude liegt in der Mitte von Hameln in zweiter Reihe an einer Parkfläche für mehrere Nutzer.
In unmittelbarer Nähe befinden sich weitere Wohn- und Geschäftsgebäude.
Durch die Lage in der Mitte von Hameln, sind alle Geschäfte des täglichen Bedarfs in unmittelbarer Nähe.
Der...
Büro-/Praxisfläche
Kategorie
Bürogebäude
Baujahr
1959
Bezug
sofort
Energie & Heizung
Warum sehe ich diese Anzeige? – Du siehst diese Anzeige basierend auf Ihrer Navigation auf unserer Website und den Suchkriterien, die du verwendet hast.
Wärme
Strom
Energieausweistyp
Verbrauchsausweis
Gebäudetyp
Nicht-Wohngebäude
Wesentliche Energieträger
Fernwärme
Gültigkeit
07.07.2017 bis 07.07.2027
Endenergieverbrauch (Wärme)
124,00 kWh/(m²·a)
Endenergieverbrauch (Strom)
39,00 kWh/(m²·a)
Weitere Energiedaten
Energieträger
Fernwärme
Heizungsart
Zentralheizung
Details
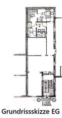
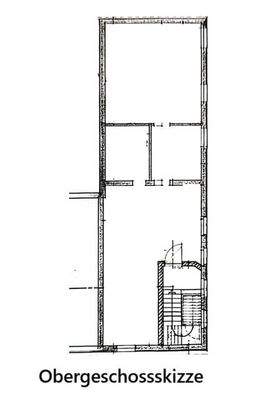
Objektbeschreibung
Das vielseitig nutzbare Büro- oder Praxisgebäude liegt in der Mitte von Hameln in zweiter Reihe mit ausreichend Parkflächen für Mitarbeiter und Kunden. Eine klassische Nutzung als Bürogebäude oder die Einrichtung von Praxisräumen ist möglich.
Das Gebäude hat ausreichend Räume im Erd- und Obergeschoss. Bei Bedarf kann...
Ausstattung
Die Räume verfügen über einen PVC-Bodenbelag, Teppichboden und Fliesen in den Sanitärräumen.
Beheizt werden die Räume über Fernwärme-Zentralheizung.
Die Warmwasser Bereitung erfolgt über Boiler unter den Waschbecken.
Preisinformation
10 Stellplätze, Miete je: 50,00 EUR
Weitere Informationen
Sonstiges
Gerne vereinbare ich eine Besichtigung für Sie. Bitte teilen Sie mir per E-Mail Ihre Wunschtermine und Ihre Telefonnummer mit. Ich melde mich nach Abstimmung des Termins umgehend bei Ihnen.
Angaben zum Energieausweis: Verbrauchsausweis,
Energieverbrauchskennwert: 124kWh, Fernwärme, Baujahr...
Anbieter der Immobilie
frb Immobilien - Frank Rudolf Braun
Immobilienkompetenz, auch in Ihrer Nähe
Online-ID: 2n4cq5u
Referenznummer: JDD/2507/28#OHb15
Finde Angebote wie dieses
Hier geht es zu unserem Impressum, den Allgemeinen Geschäftsbedingungen, den Hinweisen zum Datenschutz und nutzungsbasierter Online-Werbung.