
Ansgar Mertens Immobilien und Finanzierungen
Herr Ansgar Mertens
021 ···
Nr. anzeigenPreise & Kosten
zzgl. Nebenkosten
Provision für Mieter
Provisionsfrei
Warum sehe ich diese Anzeige? – Du siehst diese Anzeige basierend auf Ihrer Navigation auf unserer Website und den Suchkriterien, die du verwendet hast.
Lage
Der Businesspark Willicher Damm mit einer Gesamtfläche von ca. 24.444 m² hat prominente Nachbarschaft. Autohäuser, Fastfoodketten, Supermärkte oder der Neubau des Polizeipräsidiums bieten Ihnen Synergien und Netzwerke.
Mönchengladbach-Nord mit eigenen Autobahnabfahrten liegt zwischen Düsseldorf, Köln, Krefeld und den...
Büro-/Praxisfläche
Kategorie
Bürogebäude
Baujahr
2000
Bezug
sofort
Energie & Heizung
Warum sehe ich diese Anzeige? – Du siehst diese Anzeige basierend auf Ihrer Navigation auf unserer Website und den Suchkriterien, die du verwendet hast.
Weitere Energiedaten
Energieträger
Gas
Details
Objektbeschreibung
| . | Flexibilität & Veränderungsbereitschaft heißt aus Vermietersicht | . |
Raumaufteilung und Ausstattung erfolgt nach individueller Absprache.
Diese optisch mehr als ansprechende Büro - und Hallenliegenschaft spiegelt Ihre Kompetenz gegenüber Ihren Kunden und Mitarbeitern wider...
Ausstattung
| . | Gebäudeteil O | . |
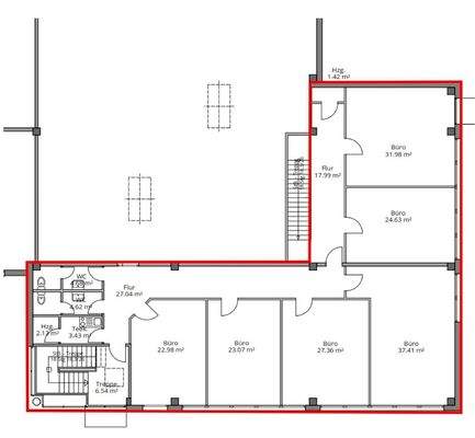
Das hier anzumietende Büro bildet den Gebäudeteil "N & O", die Fläche können Sie aus dem beigefügten Lageplan des Businesspark Willicher Damm entnehmen.
| . | Büro | . |
Boden: nach Mieterwunsch
Trennwände:...
Preisinformation
Nettokaltmiete: 8,00 EUR
Weitere Informationen
Sonstiges
Gerne lassen wir Ihnen ein individuelles Mietangebot zukommen.
Seitens des Vermieters sei ausdrücklich auf eine sehr hohe Flexibilität & Veränderungsbereitschaft verwiesen, die Flächen können als Großraumbüro genutzt werden oder in eine Zellenstruktur ausgebaut werden.
Die Energie - und...
Anbieter der Immobilie
Ansgar Mertens Immobilien und Finanzierungen
Voosen 38, 41179 Mönchengladbach
Online-ID: 2n4ca5r
Referenznummer: 335
Finde Angebote wie dieses
Hier geht es zu unserem Impressum, den Allgemeinen Geschäftsbedingungen, den Hinweisen zum Datenschutz und nutzungsbasierter Online-Werbung.