
IMMORath
Frau Lara Jaeger
004 ···
Nr. anzeigenPreise & Kosten
Provision für Käufer
3,57% inkl. MwSt.
Lage
Die angebotene Wohnung befindet sich in einer ruhigen und idyllischen Lage in Vogtsburg im Kaiserstuhl, genauer im Ortsteil Oberbergen, eingebettet in die malerische Landschaft des Kaiserstuhls. Diese Region ist bekannt für ihre Weinberge und die atemberaubende Natur, die zahlreiche schöne Wanderwege bietet und sowohl...
Die Wohnung
Kategorie
Maisonette
Bezug
Frei nach Absprache
Wohnanlage
Energie & Heizung
Warum sehe ich diese Anzeige? – Du siehst diese Anzeige basierend auf Ihrer Navigation auf unserer Website und den Suchkriterien, die du verwendet hast.
Energieausweistyp
Verbrauchsausweis
Gebäudetyp
Wohngebäude
Baujahr laut Energieausweis
1964
Wesentliche Energieträger
OEL
Gültigkeit
bis 15.03.2035
Effizienzklasse
C
Endenergieverbrauch
75,40 kWh/(m²·a)
Weitere Energiedaten
Energieträger
Öl
Heizungsart
Zentralheizung
Details
Objektbeschreibung
- Maisonette mit ca. 101 m² Wohnfläche in Vogtsburg im Kaiserstuhl / Oberbergen
- Baujahr 2001: Moderne Bauweise und gut gepflegter Zustand
- Großzügiger Grundriss mit 4 Zimmern und 2 Badezimmern
- Sonnenverwöhnter Balkon für entspannte Stunden im Freien
- Energieeffiziente Ausstattung mit Solarthermie und...
Preisinformation
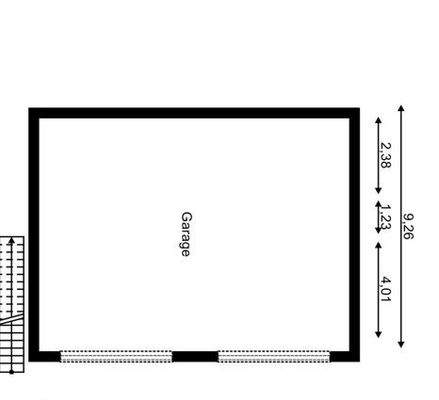
2 Stellplätze
2 Garagenstellplätze
Weitere Informationen
Sonstiges
Sie haben Interesse und möchten zeitnah die Immobilie besichtigen? Kein Problem! Schicken Sie uns gerne Ihre Anfrage, Sie werden von der Immobilie begeistert sein!
Alle vom Eigentümer bereitgestellten Informationen werden als zuverlässig erachtet, aber nicht garantiert und sollten unabhängig verifiziert...
Anbieter der Immobilie
Online-ID: 2n4bb5h
Referenznummer: IR0226462
Finde Angebote wie dieses
Hier geht es zu unserem Impressum, den Allgemeinen Geschäftsbedingungen, den Hinweisen zum Datenschutz und nutzungsbasierter Online-Werbung.