Straub - Freier Architekt

Herr Georg Straub

Moderne, kostengünstige Industrie- und Gewerbebauten für die Gewerbegebiete im LK Sigmaringen, Interkommunaler Gewerbe- und Industriepark Graf-Stauffe

auf Anfrage
Kaufpreis
k.A.
Fläche
k.A.
Teilbare Fläche
k.A.
Grundstücksfl.

Der Anbieter dieses Objekts hat gegenüber der AVIV Germany GmbH als Betreiber dieses Online-Marktplatzes erklärt, nicht als Unternehmer im Sinne des § 1 KSchG zu handeln. Die im Verbraucherschutzrecht der Union verankerten Verbraucherrechte (insbesondere Informationspflichten und Rücktritts- bzw. Widerrufsrechte) finden auf den Vertrag zwischen dem Anbieter des Objekts und Ihnen (dem Interessenten) keine Anwendung.

Provisionsfrei
Gewerblicher Anbieter

Der Anbieter dieses Objekts hat gegenüber der AVIV Germany GmbH als Betreiber dieses Online-Marktplatzes erklärt, als Unternehmer im Sinne des § 1 KSchG zu handeln.

AdresseStraße nicht freigegeben
72488 Sigmaringen 
Auf Karte ansehen

Preise & Kosten

Kaufpreis auf Anfrage

Provision für Käufer

provisionsfrei

Lage

Die Immobilie

info

Zu diesem Angebot wurden vom Anbieter keine weiteren Daten hinterlegt. Für weitere Informationen bitte den Anbieter kontaktieren.

Nach Informationen fragen

Details

Objektbeschreibung

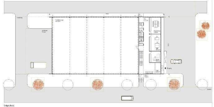
Bei dem genannten Objekt handelt es sich nicht um eine bestehende Immobilie, sondern um ein Beispielprojekt.

Individuelle Architektur trotz industrieller Vorfertigung und Modulbauweise, liegt dem Entwurfsprinzip der Produktions- und Lagergebäude zugrunde.
Gebäude in denen produziert, gelagert und verwaltet wird...

Mehr anzeigen

Weitere Informationen

Kontakt
www.straub-architekt.de
info@straub-architekt.de

Anbieter der Immobilie

Straub - Freier Architekt

Askaniaweg 6, 88662 Überlingen

user

Herr Georg Straub

Dein Ansprechpartner

Anbieter-Website Anbieter-Profil Anbieter-Impressum

Online-ID: 2n4ax5d

Finde Angebote wie dieses

imageimageimage

Hier geht es zu unserem Impressum, den Allgemeinen Geschäftsbedingungen, den Hinweisen zum Datenschutz und nutzungsbasierter Online-Werbung.