
Plus-Immobilien GmbH
Herrn Andreas Newiger
043 ···
Nr. anzeigenPreise & Kosten
Provision für Käufer
Kaufpreis zzgl. 2,38 % Maklerprovision inkl. 19 % MwSt.
Lage
In ruhiger Lage von Stein - der Strand ist zu Fuß in drei Minuten erreicht - liegt dieses Neubauprojekt im Fischerweg. Stein ist anerkannter Erholungsort und liegt direkt am Ausläufer der Kieler Förde, lange weiße Sandstrände und idyllische Weite prägen die herrliche Landschaft zwischen Meer, Steilküste, Feldern und...
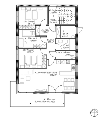
Die Wohnung
Wohnungslage
Erdgeschoss
Wohnanlage
Energie & Heizung
Warum sehe ich diese Anzeige? – Du siehst diese Anzeige basierend auf Ihrer Navigation auf unserer Website und den Suchkriterien, die du verwendet hast.
Energieausweistyp
Bedarfsausweis
Gebäudetyp
Wohngebäude
Baujahr laut Energieausweis
2025
Wesentliche Energieträger
Luft-/Wasser-Wärmepumpe
Gültigkeit
03.03.2025 bis 03.03.2035
Effizienzklasse
A
Endenergiebedarf
34,78 kWh/(m²·a)
Weitere Energiedaten
Heizungsart
Fußbodenheizung, Luft-/Wasser-Wärmepumpe
Details
Objektbeschreibung
"KAUFPREISZAHLUNG erst bei FERTIGSTELLUNG"
Auf dem Grundstück im Fischerweg 12 - 20, ca. 90 Meter vom Ostsee-Deich entfernt, werden in ruhiger Lage, fünf eingeschossige Häuser neu gebaut. In jedem Haus befinden sich 2 Eigentumswohnungen. Die Häuser werden im Effizienzhaus 40 Standard als klimafreundliche Gebäude...
Ausstattung
Ausstattung der Wohnungen:
KFW-40 Standard / klimafreundliche Gebäude
Offener Wohn- und Essbereich
Gefliestes Tageslichtbad
Abstellraum mit Waschmaschinenanschluss
Designfußbodenbelag in Holzoptik in den Wohnräumen und im Flur
Fußbodenheizung in der gesamten Wohnung
Terrassen / Balkone in...
Preisinformation
1 Carportplatz
1 Stellplatz
Weitere Informationen
Sonstiges
Für den im Bau befindlichen Neubau EH 40 liegt ein Wärmeschutznachweis vor
Anbieter der Immobilie
Plus-Immobilien GmbH
Stohler Landstraße 14, 24229 Strande
Online-ID: 2n49k5v
Referenznummer: 103 (1/103)
Finde Angebote wie dieses
Hier geht es zu unserem Impressum, den Allgemeinen Geschäftsbedingungen, den Hinweisen zum Datenschutz und nutzungsbasierter Online-Werbung.