
Escon GmbH
Frau Vanessa Sophie Keil
030 ···
Nr. anzeigenPreise & Kosten
Warum sehe ich diese Anzeige? – Du siehst diese Anzeige basierend auf Ihrer Navigation auf unserer Website und den Suchkriterien, die du verwendet hast.
Lage
Rissen - die grüne Lunge der Metropole Hamburgs!
Ganz im Westen der Hansestadt - mit rund 16.000 Einwohnern, direkt am nördlichen Elbufer, präsentiert sich Hamburg von seiner allerschönsten Seite. "Rissen" ehemals "Risne" bedeutet Strauch- und Buschwerk.
Hier kombiniert sich die Ruhe eines der grünsten Stadtteile der...
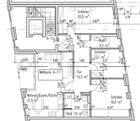
Die Wohnung
Wohnungslage
2. Geschoss
Wohnanlage
Details
Objektbeschreibung
Das Wohnquartier, welches sich über fünf Gebäudeteile erstreckt wurde im Februar 2022 fertig gestellt und verfügt über 72 hochwertige und moderne Mietwohnungen. Jedes der Gebäudeteile reicht über vier Geschosse - vom Erdgeschoss bis zum 3. Obergeschoss finden sich kompakte 2-Zimmerwohnungen bis hin zur familienfreundlichen...
Weitere Informationen
Stichworte
Anzahl der Schlafzimmer: 3, Anzahl der Badezimmer: 2, Anzahl Balkone: 1, Bundesland: Hamburg, 3 Etagen
Anbieter der Immobilie

Escon GmbH
Olivaer Platz 16, 10707 Berlin
Online-ID: 2n48x5t
Referenznummer: ASL-A-11
Finde Angebote wie dieses
Hier geht es zu unserem Impressum, den Allgemeinen Geschäftsbedingungen, den Hinweisen zum Datenschutz und nutzungsbasierter Online-Werbung.