
SparkasseSchwaben-Bodensee i.V. der Sparkasse-Immobilien- Vermittlungs-GmbH
Herr Günter Scheitle
083 ···
Nr. anzeigenPreise & Kosten
Provision für Käufer
provisionsfrei
Lage
Die Immobilie befindet sich rund 700 Meter nordöstlich vom Ortszentrum, in einem reinen Wohngebiet in ruhiger Lage, die ideal für Familien und alle ist, die nach einer entspannten Atmosphäre suchen.
Die Gemeinde Ettringen liegt am östlichen Rand des Kreises Unterallgäu, vier Kilometer nördlich von Türkheim und grenzt...
Das Haus
Kategorie
Einfamilienhaus
Energie & Heizung
Warum sehe ich diese Anzeige? – Du siehst diese Anzeige basierend auf Ihrer Navigation auf unserer Website und den Suchkriterien, die du verwendet hast.
Energieausweis: für diesen Gebäudetyp nicht notwendig
Weitere Energiedaten
Haustyp
KfW 55
Heizungsart
Zentralheizung
Details
Objektbeschreibung
Kurzbeschreibung
Hier wartet Ihr Traumhaus auf Sie!
Objekt
Dieses attraktive Einfamilienhaus mit einer Wohnfläche von ca. 170 m² Wohnfläche wird auf einem wunderschönen Grundstück mit einer Fläche von ca. 580 m² von einer alteingesessenen, heimischen Ettringer Baufirma errichtet.
Das Haus zeichnet sich aus...
Ausstattung
Raumprogramm:
EG: offener Wohn-/Ess- Kochbereich, Abstellraum, Hauswirtschaft-/Technikraum, Garderobe, Flur, Gäste-WC
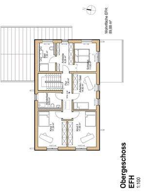
OG: zwei Kinderzimmer, Kinderbad mit Dusche, Elternschlafzimmer mit Ankleide, Bad mit Wanne und bodengleicher Dusche
Bauweise:
Holzständerbauweise, Gesamtwandstärke...
Weitere Informationen
Stichworte
Bundesland: Bayern
Anbieter der Immobilie
SparkasseSchwaben-Bodensee i.V. der Sparkasse-Immobilien- Vermittlungs-GmbH
St.-Josefs-Kirchplatz 6-8, 87700 Memmingen
Online-ID: 2n48p5r
Referenznummer: 1/20/004-004/010388
Finde Angebote wie dieses
Hier geht es zu unserem Impressum, den Allgemeinen Geschäftsbedingungen, den Hinweisen zum Datenschutz und nutzungsbasierter Online-Werbung.