
RE/MAX Prime Immobilien | Baldur Immobilien GmbH
Frau Waltraud Grabl
004 ···
Nr. anzeigenPreise & Kosten
Provision für Käufer
3,57 % inkl. 19 % MwSt. inkl. MwSt.
Lage
Die Lage verbindet ländliche Ruhe mit alltagstauglicher Anbindung. Das Einfamilienhaus liegt in einem gewachsenen Umfeld in Ramerberg, geprägt von viel Grün, kurzen Wegen im Ort und einer angenehmen, überschaubaren Nachbarschaft.
Alltag und Familie
Für den täglichen Rhythmus ist vieles schnell erreichbar. Eine...
Das Haus
Kategorie
Einfamilienhaus
Baujahr
2013
Energie & Heizung
Warum sehe ich diese Anzeige? – Du siehst diese Anzeige basierend auf Ihrer Navigation auf unserer Website und den Suchkriterien, die du verwendet hast.
Energieausweistyp
Verbrauchsausweis
Gebäudetyp
Wohngebäude
Baujahr laut Energieausweis
2013
Wesentliche Energieträger
FLUESSIGGAS
Gültigkeit
bis 26.10.2035
Effizienzklasse
B
Endenergieverbrauch
61,40 kWh/(m²·a)
Weitere Energiedaten
Energieträger
Gas
Heizungsart
Fußbodenheizung, Zentralheizung
Details
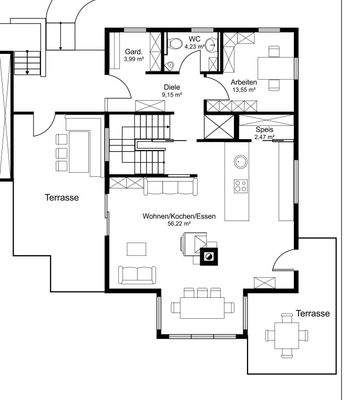
Objektbeschreibung
Komfortables Einfamilienhaus mit Garten, Aufzug und Doppelgarage - Wohnen für alle Lebensphasen
Dieses moderne Einfamilienhaus aus dem Baujahr 2013 verbindet Wohnkomfort, durchdachte Raumaufteilung und langfristige Flexibilität. Auf ca. 150 m² Wohnfläche und einem großzügigen Grundstück von ca. 788 m² bietet die...
Ausstattung
· Ausstattung & Highlights
Objektdaten
+Einfamilienhaus, Baujahr 2013
+Energieeffizienzklasse B
+Wohnfläche ca. 150 m²
+Nutzfläche ca. 117 m²
+Grundstück ca. 788 m²
+4 Zimmer
+Aufzug über alle drei Ebenen
· Wohnen & Erdgeschoss
+Offener Wohn-, Ess- und...
Weitere Informationen
Sonstiges
Rechtlicher Hinweis:
Maklerprovision: 3,57% Käuferprovision inkl. MwSt. vom notariell beurkundeten Kaufpreis, verdient und fällig bei notarieller Beurkundung. Wir haben einen provisionspflichtigen Maklervertrag in gleicher Höhe mit dem Eigentümer abgeschlossen.
Die Wohnfläche wurde auf Grundlage...
Anbieter der Immobilie
RE/MAX Prime Immobilien | Baldur Immobilien GmbH
Semmelweisstraße 8, 82152 Planegg - Steinkirchen
Online-ID: 2n47s5h
Referenznummer: 1000-38
Finde Angebote wie dieses
Hier geht es zu unserem Impressum, den Allgemeinen Geschäftsbedingungen, den Hinweisen zum Datenschutz und nutzungsbasierter Online-Werbung.