
ohne-makler.net - Immobilien selbst vermarkten
Privat von Michael
Kontaktiere den Anbieter schriftlich, es ist keine Telefonnummer hinterlegt.
Preise & Kosten
Provision für Käufer
provisionsfrei
Lage
- Direkte Park- und Seenähe (Öjendorfer Park, ca. 140 ha)
- Ruhige Wohnsiedlung (erschlossen ca. 2012)
- Busanbindung fußläufig, U-Bahn ca. 3,5 km (mit Bus erreichbar)
- Innenstadt ca. 13 km
- A24 ca. 2 km, A1 ca. 4 km
- Kitas, Schulen, Ärzte, Einkaufsmöglichkeiten im näheren Umfeld
Infrastruktur (im Umkreis...
Das Haus
Kategorie
Reihenendhaus
Baujahr
2015
Bezug
nach Absprache
Energie & Heizung
Warum sehe ich diese Anzeige? – Du siehst diese Anzeige basierend auf Ihrer Navigation auf unserer Website und den Suchkriterien, die du verwendet hast.
Energieausweistyp
Bedarfsausweis
Gebäudetyp
Wohngebäude
Effizienzklasse
B
Endenergiebedarf
53,00 kWh/(m²·a)
Weitere Energiedaten
Energieträger
Pellets
Heizungsart
Fußbodenheizung, offener Kamin
Details
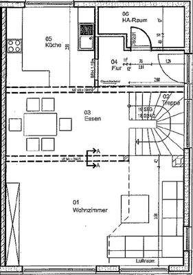
Objektbeschreibung
In der Stadt und doch im Grünen
Dieses außergewöhnliche Endreihenhaus einer 3er-RH-Zeile, bei dem sich jedes Haus in einem anderen Erscheinungsbild präsentiert - nicht wiederholend langweilig wie üblich, verbindet moderne Architektur, hochwertige Ausstattung und eine seltene Ruhe-Lage - unmittelbar am Öjendorfer Park. In...
Ausstattung
Terrasse, Garten, Dachterrasse, Vollbad, Duschbad, Sauna, Einbauküche, Gäste-WC, Kamin, Sonstiges (s. Text)
Bemerkungen:
Nacharbeiten:
Durch einen schweren Unfall unseres Sohnes stand die Immobile die ersten 5 Jahre leer, wurde jedoch regelmäßig gepflegt und beheizt - keine Standschäden. Zu dieser Zeit waren noch...
Preisinformation
2 Carportplätze
3 Stellplätze
Weitere Informationen
Sonstiges
Heizungsart: Fußbodenheizung
Energieträger: Holzpellets
Hinweis zum Verkaufsverfahren
Der erwartete Kaufpreis für diese Immobilie liegt ab 850.000 €.
Wir bitten um schriftliche Kaufpreisangebote, die erst nach erfolgter Besichtigung abgegeben werden sollen. Letzte Preis-Anfragen werden nicht...
Anbieter der Immobilie
ohne-makler.net - Immobilien selbst vermarkten
Humboldtstr. 25 A, 21509 Glinde
Privat von Michael
Dein Ansprechpartner
Kontaktiere den Anbieter schriftlich, es ist keine Telefonnummer hinterlegt.
Online-ID: 2n47l5m
Referenznummer: 431442
Finde Angebote wie dieses
Hier geht es zu unserem Impressum, den Allgemeinen Geschäftsbedingungen, den Hinweisen zum Datenschutz und nutzungsbasierter Online-Werbung.