
Crozilla.com
Angelus Real Estate
+38 ···
Nr. anzeigenPreise & Kosten
Provision für Käufer
Bitte beachte, das Angebot kann bei Vertragsabschluss die Zahlung einer Provision beinhalten. Weitere Informationen erhältst Du vom Anbieter.
Wohnanlage
Details
Objektbeschreibung
Die Immobilienagentur Angelus bietet Ihnen eine Wohnung zum Kauf an:
LAGE
Diese Villa befindet sich in Srebrnjak, etwas abseits der Srebrnjak-Straße. Die ruhige Lage garantiert absolute Privatsphäre.
SREBRNJAK nördliches Stadtzentrum von Zagreb
Nur 5 Autominuten oder 3 km zu Fuß vom Hauptplatz entfernt.
19...
Weitere Informationen
Stichworte
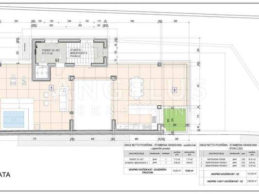
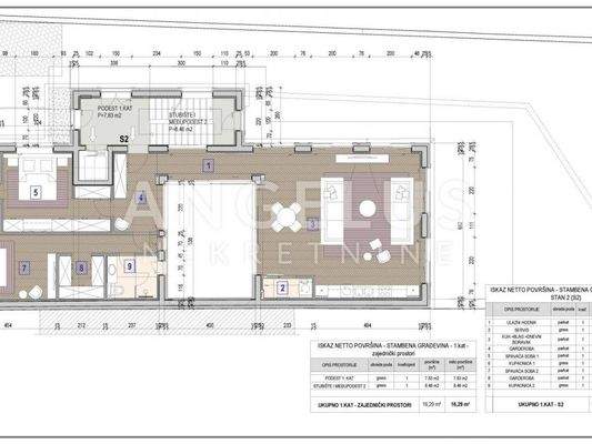
Anzahl der Schlafzimmer: 2, Anzahl der Badezimmer: 2, 1 Etagen
Anbieter der Immobilie
Crozilla.com
Nova cesta 60, 10000 ZAGREB
Online-ID: 2n4685s
Referenznummer: 19490689_0
Finde Angebote wie dieses
Hier geht es zu unserem Impressum, den Allgemeinen Geschäftsbedingungen, den Hinweisen zum Datenschutz und nutzungsbasierter Online-Werbung.