

Norbert Schaller Immobilien
Frau Gisela Löwe
091 ···
Nr. anzeigenPreise & Kosten
Kaution
3.300,00
Warum sehe ich diese Anzeige? – Du siehst diese Anzeige basierend auf Ihrer Navigation auf unserer Website und den Suchkriterien, die du verwendet hast.
Lage
Zentrale Wohnlage mit viel Grün ums Haus. Sehr gute Anbindung an das öffentliche Verkehrsnetz. Die U-Bahn- und Bushaltestellen liegen nur wenige Gehminuten entfernt. Mit dem Auto schnelle Anbindung an die Süd-West-Tangente. Alle Dinge des täglichen Bedarfs sind bequem zu Fuß erreichbar. Auch Ärzte und Apotheke befinden sich...
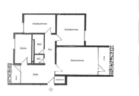
Die Wohnung
Wohnungslage
5. Geschoss
Bezug
* Frei
Derzeitige Nutzung
frei
Wohnanlage
Energie & Heizung
Warum sehe ich diese Anzeige? – Du siehst diese Anzeige basierend auf Ihrer Navigation auf unserer Website und den Suchkriterien, die du verwendet hast.
Energieausweistyp
Verbrauchsausweis
Gebäudetyp
Wohngebäude
Wesentliche Energieträger
Gas
Gültigkeit
bis 05.02.2028
Effizienzklasse
E
Endenergieverbrauch
131,70 kWh/(m²·a)
Weitere Energiedaten
Energieträger
Gas
Heizungsart
Zentralheizung
Details
Objektbeschreibung
* Gepflegte Wohnanlage mit viel Grün ums Haus
* Die Wohnung wurde von den Eigentümern liebevoll renoviert
* Neue Elektrik, Wände komplett weiß gestrichen, moderner Vinylboden in allen Räumen
* Bad / WC getrennt, Bad mit Wanne, Waschbecken, Handtuchheizkörper und Waschmaschinenanschluss, zeitlos raumhoch weiß...
Weitere Informationen
Etage
* 5. OG mit Aufzug
Stellplatz
* Tiefgarageneinzelstellplatz zzgl. EUR 80,- monatlich
Hinweis
NORBERT SCHALLER IMMOBILIEN
Deutschherrnstr. 47
90 429 Nürnberg
Telefon: 09 11 - 9 94 37 23
Internet: www.schaller-immobilien.de
E-mail: info@schaller-immobilien.de
Bitte...
Anbieter der Immobilie

Online-ID: 2n3vg5j
Referenznummer: A3435
Finde Angebote wie dieses
Hier geht es zu unserem Impressum, den Allgemeinen Geschäftsbedingungen, den Hinweisen zum Datenschutz und nutzungsbasierter Online-Werbung.