

Peter Peters Immobilien GmbH &Co.KG
Herr Peter Peters
046 ···
Nr. anzeigenPreise & Kosten
Provision für Käufer
3,57 % inkl. MwSt.
Lage
Kampen besticht durch die Reetdächer, seine Ruhe und seine ideale Lage auf der Sonneninsel Sylt. Das beschauliche Dorf präsentiert sich dabei facettenreicher als so manche Großstadt. Im Westen laden der endlos erscheinende Sandstrand und die raue Nordsee zum Sonnen-/Baden sowie zu ausgiebigen Spaziergängen ein. Im Osten...
Das Haus
Kategorie
Doppelhaushälfte
Baujahr
2002
Energie & Heizung
Warum sehe ich diese Anzeige? – Du siehst diese Anzeige basierend auf Ihrer Navigation auf unserer Website und den Suchkriterien, die du verwendet hast.
Weitere Energiedaten
Energieträger
Gas
Heizungsart
Zentralheizung
Details
Objektbeschreibung
Diese Haushälfte unter Reet präsentiert sich im Charakter eines Einzelhauses und verbindet traditionelle Sylter Baukunst mit zeitgemäßem Wohnkomfort.
Der friesische Stil prägt die Immobilie auch nach einer umfassenden Renovierung und zeigt sich in zahlreichen liebevoll erhaltenen und neu interpretierten Details. So finden...
Ausstattung
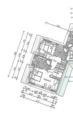
Über die Diele im Eingangsbereich mit Zugang zur Garderobe sowie zum Gäste-WC gelangen Sie in den großzügigen, lichtdurchfluteten Wohn- und Essbereich. Hochwertige Parkettböden unterstreichen das edle Ambiente und der Raum öffnet sich harmonisch zur Küche hin. Von hier aus haben Sie direkten Zugang zur nach Süden und Westen...
Preisinformation
1 Stellplatz
Weitere Informationen
Stichworte
Stellplatz vorhanden, Nutzfläche: 200,00 m², Gesamtfläche: 200,00 m², Anzahl der Schlafzimmer: 4, Anzahl der Badezimmer: 3, Anzahl der separaten WCs: 1, Anzahl Terrassen: 1, Bundesland: Schleswig-Holstein
Anbieter der Immobilie

Online-ID: 2n3vf5k
Referenznummer: 2249
Finde Angebote wie dieses
Hier geht es zu unserem Impressum, den Allgemeinen Geschäftsbedingungen, den Hinweisen zum Datenschutz und nutzungsbasierter Online-Werbung.