
Zondler & Costanzo Immobilien GbR
Herr Matthias Zondler
Kontaktiere den Anbieter schriftlich, es ist keine Telefonnummer hinterlegt.
Preise & Kosten
Provision für Käufer
Bei Abschluss eines Kaufvertrages wird eine Vermittlung-/ Nachweisprovision in Höhe von 3,57 % inklusive 19,00 % MwSt. auf den Kaufpreis vom Käufer fällig.
Lage
Die angebotene Maisonettewohnung befindet sich in begehrter Halbhöhenlage von Esslingen-Liebersbronn, einem der beliebtesten und zugleich ruhigsten Wohngebiete von Esslingen am Neckar. Die naturnahe Umgebung, die lockere Bebauung sowie die hervorragende Aussichtslage verleihen dem Standort eine besonders hohe...
Die Wohnung
Kategorie
Maisonette
Bezug
sofort
Wohnanlage
Energie & Heizung
Warum sehe ich diese Anzeige? – Du siehst diese Anzeige basierend auf Ihrer Navigation auf unserer Website und den Suchkriterien, die du verwendet hast.
Energieausweistyp
Bedarfsausweis
Gebäudetyp
Wohngebäude
Baujahr laut Energieausweis
1962
Wesentliche Energieträger
Gas
Gültigkeit
04.03.2026 bis 03.03.2036
Effizienzklasse
G
Endenergiebedarf
249,90 kWh/(m²·a)
Weitere Energiedaten
Energieträger
Gas
Heizungsart
Etagenheizung
Details
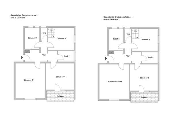
Objektbeschreibung
* BEGEHRTE HALBHÖHENLAGE IN ESSLINGEN-LIEBERSBRONN *
* GROSSE 6-/7-ZIMMER-MAISONETTEWOHNUNG MIT TOLLER AUSSICHT *
* CA. 152 QM WOHNFLÄCHE * 2 BALKONE * 2 PKW-STELLPLÄTZE *
Diese Maisonettewohnung entstand durch die Zusammenlegung zweier separater Wohneinheiten (jeweils 3-Zi.-Wohnungen).
Sie befindet sich...
Ausstattung
ECKDATEN IM ÜBERBLICK:
. gute und ruhige Halbhöhenlage in Esslingen am Neckar (Liebersbronn)
. gepflegtes 7-Familienhaus / Baujahr 1962
. großzügige 6-/7-Zimmer-Maisonettewohnung mit 5-6 Schlafzimmern, Küche, 2 Tageslicht-Bäder, 2 separate WCs, 2 Balkone
. ca. 152 qm Wohnfläche / ca. 8 qm Nutzfläche (2 Kellerräume...
Preisinformation
2 Stellplätze
Weitere Informationen
Sonstiges
KAUFPREIS: 435.000,- EUR
BEZUGSFREI: AB SOFORT
Angaben Energieausweis:
. Bedarfsenergiekennwert: 249,9 kWh/qm*a
. Energieeffizienzklasse: "G"
. wesentlicher Energieträger: Erdgas
. Baujahr Gebäude: 1962
. Baujahr Wärmeerzeuger: 2010, 1978
. Ausweis gültig bis...
Anbieter der Immobilie

Zondler & Costanzo Immobilien GbR
Biberacher Straße 69, 70327 Stuttgart
Herr Matthias Zondler
Dein Ansprechpartner
Kontaktiere den Anbieter schriftlich, es ist keine Telefonnummer hinterlegt.
Online-ID: 2n3vd5s
Referenznummer: 8956#9u7RBw
Finde Angebote wie dieses
Hier geht es zu unserem Impressum, den Allgemeinen Geschäftsbedingungen, den Hinweisen zum Datenschutz und nutzungsbasierter Online-Werbung.