

Immobilien Hofmann GmbH & Co. KG
Frau Peggy Hofmann
017 ···
Nr. anzeigenPreise & Kosten
Provision für Käufer
3,57%
Provision berechnet sich aus dem Notariell beurkundeten Verkaufspreis für das Grundstück d.h. 3,57% Provision inkl. der gesetzlichen MwSt. aus dem Grundstücksanteil.
Lage
Lagebeschreibung - Feldstraße 10, 85459 Berglern
Die Immobilie befindet sich in ruhiger und äußerst familienfreundlicher Lage in der Feldstraße 10 im beschaulichen Ort Berglern im oberbayerischen Landkreis Erding. Diese Lage bietet eine ideale Kombination aus naturnahem Wohnen und sehr guter Anbindung an die...
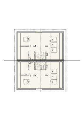
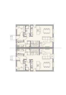
Das Haus
Kategorie
Doppelhaushälfte
Baujahr
2026
Bezug
2026, je nach Vereinbarung
Energie & Heizung
Warum sehe ich diese Anzeige? – Du siehst diese Anzeige basierend auf Ihrer Navigation auf unserer Website und den Suchkriterien, die du verwendet hast.
Weitere Energiedaten
Heizungsart
Fußbodenheizung, Luft-/Wasser-Wärmepumpe
Details
Objektbeschreibung
Doppelhaushälfte mit Ausbaupotenzial in KfW 40-Bauweise auf voll erschlossenem Grundstück
In familienfreundlicher Wohnlage entsteht auf einem rund 257 m² großen Grundstück ein modernes und energieeffizientes Doppelhaus mit attraktivem Ausbaupotenzial. Das Grundstück wird voll erschlossen verkauft und bildet die...
Preisinformation
3 Carportplätze
Weitere Informationen
Sonstiges
Prospekthaftungshinweis:
Dieses Exposé stellt kein Verkaufsangebot dar. Es dient allein Informationszwecken. Alle Angaben und Darstellungen in diesem Exposé wurden zwar mit größter Sorgfalt überprüft und zusammengestellt, sie können sich aber jederzeit ändern. Weder Immobilien Hofmann noch die übrigen...
Anbieter der Immobilie

Online-ID: 2n3uz5u
Referenznummer: 1624
Finde Angebote wie dieses
Hier geht es zu unserem Impressum, den Allgemeinen Geschäftsbedingungen, den Hinweisen zum Datenschutz und nutzungsbasierter Online-Werbung.