

Pell-Rich Immobilien Michael Pellinghoff & Thomas Gierich GbR
Herr Christopher Doll
+49 ···
Nr. anzeigenPreise & Kosten
Provision für Käufer
provisionsfrei
Lage
Herzlich Willkommen im ländlichen Karlsbad-Spielberg.
Die Immobilien liegen im Ortsteil Spielberg von Karlsbad, einer kleinen und gemütlichen Gemeinde am Fuße der Nordschwarzwalds.
Die Ortschaft selbst zeichnet sich durch eine hohe Wohnbebauung aus, wodurch eine ruhige Atmosphäre und hoher Lebensstandard garantiert...
Die Wohnung
Bezug
nach Vereinbarung
Wohnanlage
Energie & Heizung
Warum sehe ich diese Anzeige? – Du siehst diese Anzeige basierend auf Ihrer Navigation auf unserer Website und den Suchkriterien, die du verwendet hast.
Weitere Energiedaten
Energieträger
Elektro
Details
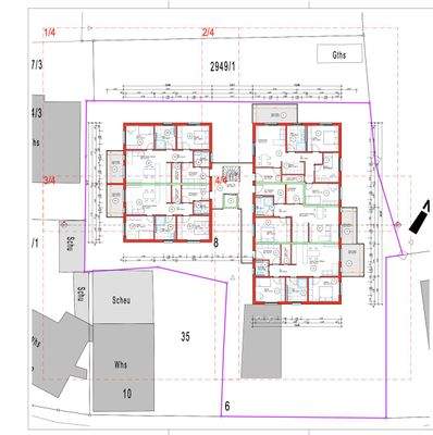
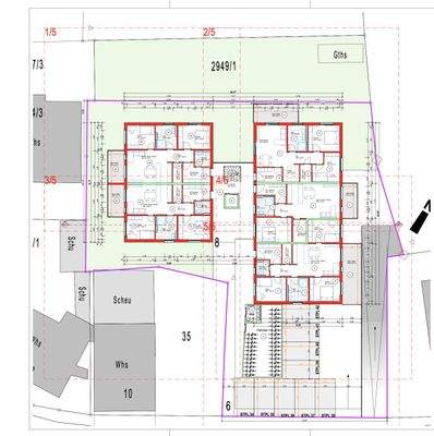
Objektbeschreibung
NEUBAUPROJEKT
Angeboten wird Ihnen hier ein Neubauprojekt in Karlsbad-Spielberg welches insgesamt 14 Neubauwohnungen sowie 27 Stellplätze umfasst.
Von den insgesamt 14 Einheiten stehen noch neun zur Verfügung, von den insgesamt 28 Stellplätzen sind es noch 17.
Auf unserer Landingpage finden Sie eine stets...
Ausstattung
- Baujahr: Neubau / Erstbezug
- Aufzug von der Tiefgarage bis in alle Wohngeschosse (barrierefrei)
- Vorrichtung für E-Mobilität
- Energieeffiziente Luft-Wasser-Wärmepumpe
- Fußbodenheizung in allen Wohnungen mit Einzelraumregelung
- Zentrale Warmwasseraufbereitung
- Photovoltaikanlage für die Versorgung...
Preisinformation
2 Stellplätze
2 Tiefgaragenstellplätze
Weitere Informationen
Sonstiges
Wir arbeiten bei diesem Objekt auf Basis eines Erfolgshonorars. Der Erwerb der Wohnungen ist für den Käufer provisionsfrei. Unsere Vergütung erhalten wir ausschließlich von der Verkäuferseite. Für den Käufer fällt somit im Erfolgsfall keine Maklerprovision an.
Die Provision ist fällig bei notarieller...
Online-ID: 2n3ux5k
Referenznummer: 997
Finde Angebote wie dieses
Hier geht es zu unserem Impressum, den Allgemeinen Geschäftsbedingungen, den Hinweisen zum Datenschutz und nutzungsbasierter Online-Werbung.