

KHC Bauträger GmbH
Frau Janet Schrepel
037 ···
Nr. anzeigenPreise & Kosten
Provision für Käufer
provisionsfrei
Lage
Das großzügige Grundstück befindet sich im Reichenbacher Stadtteil Waldfrieden, umgeben von Einfamilienhäusern und Feldern.
Das Haus
Kategorie
Einfamilienhaus
Baujahr
2026
Energie & Heizung
Warum sehe ich diese Anzeige? – Du siehst diese Anzeige basierend auf Ihrer Navigation auf unserer Website und den Suchkriterien, die du verwendet hast.
Energieausweistyp
Bedarfsausweis
Gebäudetyp
Wohngebäude
Baujahr laut Energieausweis
2026
Gültigkeit
seit 04.01.2016
Effizienzklasse
A
Weitere Energiedaten
Heizungsart
Fußbodenheizung, Zentralheizung
Details
Objektbeschreibung
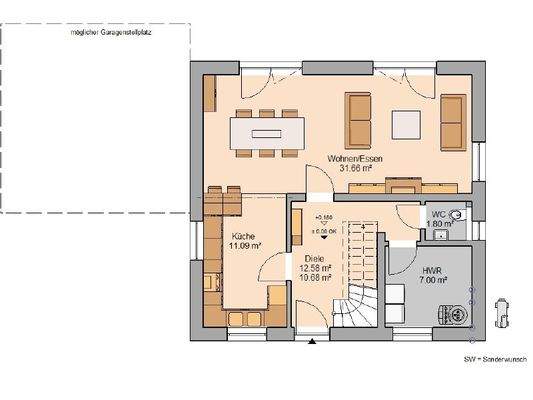
Familienhaus Luco betreten Sie über eine Diele, von der Sie alle Räume des Erdgeschosses erreichen. Von dort führt auch die Treppe ins Dachgeschoss. Die Küche ist offen zum Wohn- und Essbereich gehalten und wirkt durch die Fensterflächen sehr hell. Der offene Wohn- und Essbereich ist der Treffpunkt für die Familie mit einem...
Ausstattung
4 Zimmer, offene Küche, Diele, Flur, Bad, WC, Hauswirtschaftsraum
Das gezeigte Traumhaus im Überblick:
+ Schlüsselfertiges Massivhaus im Sinne der Ausstattungsbeschreibung "Easy"
+ Inklusive Bodenplatte
Beste Markenausstattung in jedem Kern-Haus:
+ Zimmermannsmäßiger Dachstuhl aus...
Weitere Informationen
Sonstiges
Kern-Haus
Kern-Haus baut individuelle und massive Architektenhäuser zu einem attraktiven Preis-Leistungs-Verhältnis - und das bereits mit einer Erfahrung seit 1980.
Maximale Sicherheit bei Kern-Haus:
+ 10 Jahre Gewährleistung auf die wesentlichen Bauleistungen
+ Bis zu 24 Monate...
Anbieter der Immobilie

Online-ID: 2n3uu5h
Referenznummer: KH 120_05
Finde Angebote wie dieses
Hier geht es zu unserem Impressum, den Allgemeinen Geschäftsbedingungen, den Hinweisen zum Datenschutz und nutzungsbasierter Online-Werbung.