
Crozilla.com
Biliskov real estate
+38 ···
Nr. anzeigenPreise & Kosten
Provision für Käufer
Bitte beachte, das Angebot kann bei Vertragsabschluss die Zahlung einer Provision beinhalten. Weitere Informationen erhältst Du vom Anbieter.
Wohnanlage
Details
Objektbeschreibung
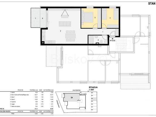
www.biliskov.com ID: 15178 Pag, Mandre Zum Verkauf steht eine Drei-Zimmer-Wohnung mit 81,67m im 1. Stock eines luxuriösen Neubaus mit 8 Wohneinheiten. Die Fertigstellung ist fürim Laufe desMArch 2026
Die Wohnung (S4) besteht aus einem Eingangsbereich, offenem Wohnkonzept mit Küche, Ess- und Wohnzimmer, zwei Schlafzimmern...
Weitere Informationen
Stichworte
Anzahl der Badezimmer: 1, 1 Etagen
Anbieter der Immobilie
Crozilla.com
Nova cesta 60, 10000 ZAGREB
Online-ID: 2n3u25m
Referenznummer: 18607630_2
Finde Angebote wie dieses
Hier geht es zu unserem Impressum, den Allgemeinen Geschäftsbedingungen, den Hinweisen zum Datenschutz und nutzungsbasierter Online-Werbung.