
Volksbank Allgäu-Oberschwaben Immobilien GmbH
Herr Norbert Jakobartl
+49 ···
Nr. anzeigenPreise & Kosten
Provision für Käufer
3,57 % inkl. MwSt.
Lage
Im Westallgäu zwischen Memmingen und Wangen im Allgäu bildet die große Kreisstadt Leutkirch im Allgäu mit ihren ca. 25.000 Einwohnern das Zentrum für die umliegenden Gemeinden.
Für Familien hat die Stadt zahlreiche Angebote zur Kleinkinderbetreuung, Kindergärten und Schulen und das aktive Vereinsleben lädt ein, sich hier...
Das Haus
Kategorie
Einfamilienhaus
Baujahr
1990
Bezug
sofort
Energie & Heizung
Warum sehe ich diese Anzeige? – Du siehst diese Anzeige basierend auf Ihrer Navigation auf unserer Website und den Suchkriterien, die du verwendet hast.
Energieausweistyp
Bedarfsausweis
Gebäudetyp
Wohngebäude
Baujahr laut Energieausweis
1990
Wesentliche Energieträger
Öl
Gültigkeit
12.08.2023 bis 11.08.2033
Effizienzklasse
F
Endenergiebedarf
178,30 kWh/(m²·a)
Weitere Energiedaten
Haustyp
Massivhaus
Energieträger
Öl
Heizungsart
Zentralheizung
Details
Objektbeschreibung
Dieses attraktive Einfamilienhaus befindet sich in ruhiger und äußerst beliebter Dorf-Randlage zwischen Leutkirch und Bad Wurzach und bietet dank seiner Hanglage einen herrlichen, unverbaubaren Weitblick über die umliegende Landschaft bis hin zu den Bergen - ideal für Naturliebhaber und Ruhesuchende.
Das Haus überzeugt...
Weitere Informationen
Stichworte
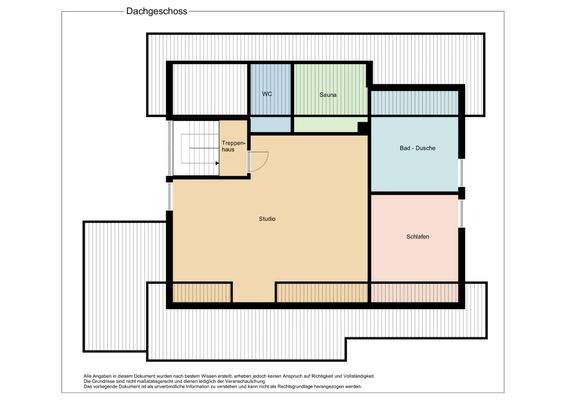
Garage vorhanden, Nutzfläche: 100,00 m², Anzahl der Schlafzimmer: 3, Anzahl der Badezimmer: 2, Anzahl der separaten WCs: 1, Anzahl Balkone: 1, Anzahl Terrassen: 1, Bundesland: Baden-Württemberg, 3 Etagen
Anbieter der Immobilie
Online-ID: 2n3tl5c
Referenznummer: DR-25-12546
Finde Angebote wie dieses
Hier geht es zu unserem Impressum, den Allgemeinen Geschäftsbedingungen, den Hinweisen zum Datenschutz und nutzungsbasierter Online-Werbung.