
IWA Berlin Real Estate GmbH
Herr Marc Niederprüm
+49 ···
Nr. anzeigenPreise & Kosten
Provision für Käufer
provisionsfrei
Lage
Vor mehr als 100 Jahren wurde in Johannisthal Geschichte geschrieben. Hier hoben sich vor den begeisterten Augen der Berliner Prominenz die ersten deutschen Motorflugzeuge in die Lüfte. Noch heute ist etwas von dem Glanz der damaligen Zeit in Johannisthal spürbar. Der Ortsteil, der zu Treptow-Köpenick gehört, bietet seinen...
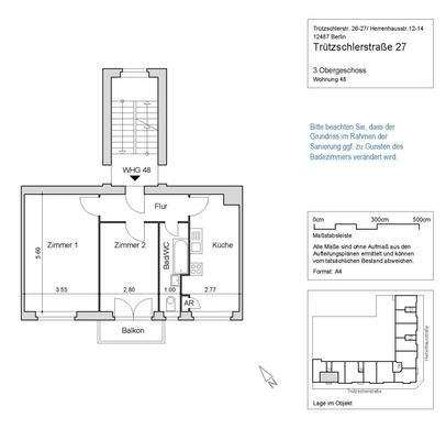
Die Wohnung
Wohnungslage
3. Geschoss
Bezug
sofort
Wohnanlage
Energie & Heizung
Warum sehe ich diese Anzeige? – Du siehst diese Anzeige basierend auf Ihrer Navigation auf unserer Website und den Suchkriterien, die du verwendet hast.
Energieausweistyp
Verbrauchsausweis
Gebäudetyp
Wohngebäude
Baujahr laut Energieausweis
1930
Gültigkeit
29.11.2023 bis 01.11.2033
Effizienzklasse
C
Endenergieverbrauch
75,40 kWh/(m²·a)
Weitere Energiedaten
Energieträger
Fernwärme
Details
Objektbeschreibung
...oder beides? Diese knapp 60 qm große Wohnung bietet nach der umsichtigen Sanierung einen frischen Start mit Erstbezug. Sie hat einen wunderbar klaren Schnitt mit zwei separaten Zimmern. Es bleibt nur die Qual der Wahl: kuscheliges Wohnzimmer mit Balkonzugang und geräumigem Arbeits- und Schlafzimmer nebst großem Fenster...
Ausstattung
- gepflegter Altbau mit 59 Wohn- und einer Gewerbeeinheit am historischen Standort in einer ruhigen Seitenstraße - fünf Hauseingänge mit einem großen begrüntem Gemeinschaftshof sowie Spielplatz und Spielfläche - die Treppenhäuser wurden 2020 modernisiert - inklusive Malerarbeiten, Verlegung eines Sisalbelages, Erneuerung der...
Weitere Informationen
Sonstiges
Es stehen weitere 2- bis 4-Zimmer-Wohnungen in diesem Objekt als vermietete Kapitalanlage oder zur Selbstnutzung zur Verfügung. Bei Interesse lassen wir Ihnen gerne umfangreiche Informationen zu dieser Immobilie und der Eigentümergemeinschaft zukommen. Um Ihnen weitere Informationen oder zu gegebenem Zeitpunkt...
Anbieter der Immobilie
IWA Berlin Real Estate GmbH
Kurfürstendamm 38 - 39, 10719 Berlin
Online-ID: 2n3m55r
Referenznummer: 31-48
Finde Angebote wie dieses
Hier geht es zu unserem Impressum, den Allgemeinen Geschäftsbedingungen, den Hinweisen zum Datenschutz und nutzungsbasierter Online-Werbung.