

Wohnkraft Immobilien
Herr Atila Yasa
+49 ···
Nr. anzeigenPreise & Kosten
Provision für Käufer
provisionsfrei
Lage
Willkommen in Nagold - der Stadt zum Wohlfühlen!
Ihren rund 22.000 Einwohnern hat Nagold viel zu bieten:
Zahlreiche Einkaufsmöglichkeiten, Bildungseinrichtungen und Freizeitangebote bereichern den Alltag. Ob Sie Wander- und Radtouren genießen, im Badepark planschen oder im Hochseilgarten ein luftiges Abenteuer suchen...
Die Wohnung
Wohnungslage
Erdgeschoss
Bezug
sofort
Wohnanlage
Details
Objektbeschreibung
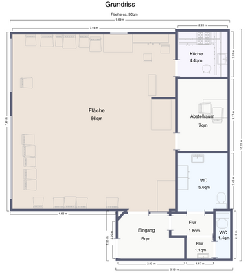
Diese ansprechende Gewerbefläche mit einer Gesamtgröße von ca. 90 m² bietet ideale Voraussetzungen für unterschiedlichste Nutzungsmöglichkeiten - ob als Büro, Praxis, Studio oder Verkaufsfläche.
Die großzügigen, zweifach verglasten Fensterfronten sorgen für helle, freundliche Räume und bieten gleichzeitig hervorragende...
Ausstattung
- ca. 90 m² Gewerbefläche mit vielseitigen Nutzungsmöglichkeiten
- Große, zweifach verglaste Fensterfronten - lichtdurchflutet und repräsentativ
- Zwei separate Eingänge
- Haupteingang direkt in die Gewerbefläche
- Seiteneingang mit eigenem Flur zu den Sanitärbereichen
- Getrennte Damen- und Herren-WCs
-...
Preisinformation
3 Stellplätze
Weitere Informationen
Sonstiges
Die angebotene Gewerbefläche bietet vielfältige Nutzungsmöglichkeiten und lässt sich flexibel an Ihre individuellen Bedürfnisse anpassen.
So kann die Einheit weiterhin als Gewerbefläche genutzt und beispielsweise zu einem Friseur- oder Kosmetiksalon umgestaltet werden. Ebenso eignet sich die Fläche...
Dokumente
Anbieter der Immobilie
Wohnkraft Immobilien
Brunnenstr. 14, 72202 Nagold

Online-ID: 2n3kw58
Referenznummer: 4834859
Finde Angebote wie dieses
Hier geht es zu unserem Impressum, den Allgemeinen Geschäftsbedingungen, den Hinweisen zum Datenschutz und nutzungsbasierter Online-Werbung.