

Safe Select Immobilien und Baufinanzierung
Herr Arwid Walker
+49 ···
Nr. anzeigenPreise & Kosten
Provision für Käufer
provisionsfrei
Lage
Pegeia zählt zu den begehrten Wohnlagen im Westen Zyperns und verbindet eine angenehm ruhige, gepflegte Umgebung mit einer sehr guten Erreichbarkeit wichtiger Ziele des täglichen Lebens. Das Einfamilienhaus befindet sich in einer attraktiven Wohngegend, die Privatsphäre und Erholung bietet - ideal für alle, die mediterranes...
Das Haus
Kategorie
Einfamilienhaus
Baujahr
2027
Energie & Heizung
Warum sehe ich diese Anzeige? – Du siehst diese Anzeige basierend auf Ihrer Navigation auf unserer Website und den Suchkriterien, die du verwendet hast.
Weitere Energiedaten
Energieträger
Elektro
Heizungsart
Fußbodenheizung
Details
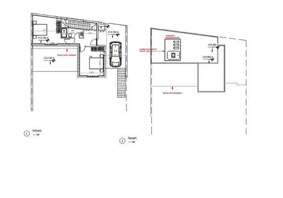
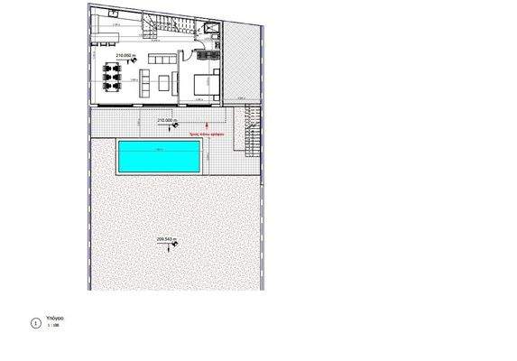
Objektbeschreibung
Willkommen in Ihrem Traumhaus in den bezaubernden Hügeln von Pegeia bei Paphos. Dieses neu erbaute, luxuriöse Einfamilienhaus bietet alles, was Sie sich für ein hochwertiges Wohnerlebnis wünschen.
Mit einer Grundstücksgröße von ca. 406 m² und einer Wohnfläche von ca. 150 m² bietet das Objekt ausreichend Platz und...
Ausstattung
- Einbauküche
- Offene Küche
- Terrasse
- Carport (1 Stellplatz)
- Fußbodenheizung
- Elektroheizung (optional nach Wunsch)
- Privater Pool
- Außendusche
- Grillbereich / Barbecue
- Energieeffiziente Bauweise (Energieklasse A)
- Hochwertige Ausstattung
- Gesicherte...
Preisinformation
2 Stellplätze
Weitere Informationen
Sonstiges
Optionale Extras (gegen Aufpreis):
- Vorbereitung für Fußbodenheizung - 12.000?€
- Komplett installierte Fußbodenheizung - 19.000?€
- Solarpaket (3?kW) - 5.000?€
- Angelegter Garten / Landschaftsgarten - 6.000?€
- Videoüberwachung (CCTV) - 3.000?€
Sehr geehrte Interessentinnen und...
Anbieter der Immobilie
Safe Select Immobilien und Baufinanzierung
Biberacher Str. 18, 88444 Ummendorf

Online-ID: 2n3kl5u
Referenznummer: 179
Finde Angebote wie dieses
Hier geht es zu unserem Impressum, den Allgemeinen Geschäftsbedingungen, den Hinweisen zum Datenschutz und nutzungsbasierter Online-Werbung.