

Stein & Co Vermögensverwaltung GmbH
Herr Bernd Raeuber
033 ···
Nr. anzeigenPreise & Kosten
Provision für Käufer
Bitte beachte, das Angebot kann bei Vertragsabschluss die Zahlung einer Provision beinhalten. Weitere Informationen erhältst Du vom Anbieter.
Lage
Der Ort Borkwalde liegt im Landkreis Potsdam-Mittelmark, inmitten eines ausgedehnten Waldgebietes.
Borkwalde ist ca. 49 km Luftlinie von Berlin entfernt.
Durch die wenige Kilometer entfernten Bundesautobahnen A 9 (München- Berlin) A 10 (Berliner Ring) A 2 (Berlin - Hannover) hat man sehr gute Verkehrsanbindungen in die...
Die Wohnung
Wohnungslage
1. Geschoss (Erdgeschoss)
Derzeitige Nutzung
vermietet
Wohnanlage
Energie & Heizung
Warum sehe ich diese Anzeige? – Du siehst diese Anzeige basierend auf Ihrer Navigation auf unserer Website und den Suchkriterien, die du verwendet hast.
Energieausweistyp
Verbrauchsausweis
Gebäudetyp
Wohngebäude
Wesentliche Energieträger
Gas
Gültigkeit
05.03.2024 bis 04.03.2034
Effizienzklasse
C
Endenergieverbrauch
80,00 kWh/(m²·a) - Warmwasser enthalten
Weitere Energiedaten
Energieträger
Gas
Heizungsart
Zentralheizung
Details
Objektbeschreibung
Rendite 4,58% Kaufpreisfaktor 21,83
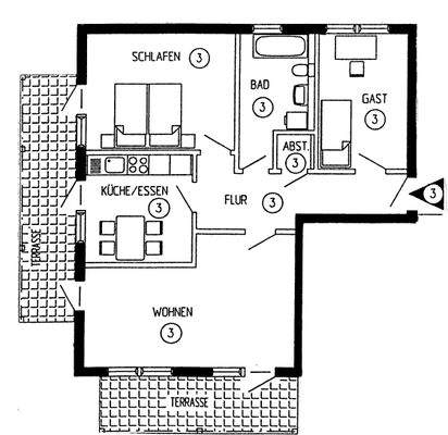
Die angebotene Immobilie ist eine Erdgeschosswohnung in einem Neubau aus dem Jahr 1994. Die Wohnfläche beträgt 86,32 Quadratmeter und die Energieeffizienzklasse ist C. Das Gebäude verfügt über insgesamt drei Etagen, wobei die Wohnung sich auf der ersten Etage befindet. Ein Garten kann...
Ausstattung
. Wohnzimmer
. Terrassen 2
. Schlafzimmer 2
. Küche
. Bad mit Badewanne, Bodeneinlauf und Waschmaschinenanschluss
. Mieterkeller mit Stromversorgung (Licht und Steckdose)
. Gemeinschaftskeller Fahrradkeller
. Gemeinschaftskeller Trockenraum
. PKW-Stellplätze auf den Parkplätzen der...
Weitere Informationen
Sonstiges
Keine Provision für Kaufende bei der Stein & Co. Vermögensverwaltung GmbH.
Die Wohnung ist gut vermietet, es gibt keine Probleme, die Mietzahlungen erfolgen zuverlässig.
Es gibt keine Rechtsstreitigkeiten und keine Wohngeldschuldner in dieser Gemeinschaft der Wohnungseigentümer.
Detaillierte...
Dokumente
Anbieter der Immobilie

Stein & Co Vermögensverwaltung GmbH

Online-ID: 2n3jr5r
Referenznummer: 9003#8l0iiL
Finde Angebote wie dieses
Hier geht es zu unserem Impressum, den Allgemeinen Geschäftsbedingungen, den Hinweisen zum Datenschutz und nutzungsbasierter Online-Werbung.