
Karen Ulrich Immobilien GmbH
Frau Melanie Bester
004 ···
Nr. anzeigenPreise & Kosten
Provision für Käufer
Außencourtage 3,59% inkl. MwSt. zu zahlen vom Käufer bei Beurkundung des Kaufvertrages. inkl. MwSt.
Lage
Dieses tolle Reihenendhaus mit attraktivem Eckgrundstück liegt im Hamburger Stadtteil Hamburg-Harburg (Langenbek) im Süden der Hansestadt und bietet ein angenehmes, gewachsenes Wohnumfeld mit sehr guter Infrastruktur. Einkaufsmöglichkeiten für den täglichen Bedarf, Supermärkte, Bäckereien sowie Ärzte und Apotheken befinden...
Das Haus
Kategorie
Reihenendhaus
Baujahr
1989
Energie & Heizung
Warum sehe ich diese Anzeige? – Du siehst diese Anzeige basierend auf Ihrer Navigation auf unserer Website und den Suchkriterien, die du verwendet hast.
Energieausweistyp
Verbrauchsausweis
Gebäudetyp
Wohngebäude
Baujahr laut Energieausweis
2011
Wesentliche Energieträger
GAS
Gültigkeit
bis 05.03.2036
Effizienzklasse
F
Endenergieverbrauch
161,20 kWh/(m²·a)
Weitere Energiedaten
Energieträger
Gas
Heizungsart
Zentralheizung
Details
Objektbeschreibung
Traumhaft gepflegtes Familiendomizil in begehrter Lage - mit Garten rund ums Haus und attraktiver Ausbaureserve.
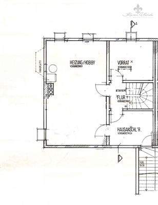
Dieses ausgesprochen gepflegte Reihenendhaus aus dem Baujahr 1989 überzeugt durch eine solide Bauweise, eine durchdachte Raumaufteilung und vielseitige Erweiterungsmöglichkeiten. Auf ca. 112 m² Wohnfläche...
Ausstattung
- Baujahr: 1989
- Wohnfläche ca. 112,11 m²
- Nutzfläche ca. 59,45 m²
- 3 Zimmer (4 möglich + 5. mit Dachbodenausbau)
- Grundstück: ca. 350 m²
- Offene Küche mit moderne Einbauküche mit hochwertiger
Naturstein Arbeitsplatte
- Gasheizung aus 2011
- Vollbad mit Dusche und Fenster, 2 Waschbecken
-...
Preisinformation
1 Stellplatz
Weitere Informationen
Sonstiges
Wir möchten, dass Sie zufrieden sind! Wir sind ein erfahrener Makler und seit 1987 tätig. Wir stehen Ihnen für alle Fragen rund um die Immobilie zur Verfügung. Sie möchten eine Bewertung ihrer Immobilie- wir kommen selbstverständlich unverbindlich zu Ihnen. Der Makler-Vertrag mit uns kommt durch schriftliche...
Anbieter der Immobilie
Karen Ulrich Immobilien GmbH
Marquardtsweg 2, 21217 Seevetal
Online-ID: 2n3jl5w
Referenznummer: 1308
Finde Angebote wie dieses
Hier geht es zu unserem Impressum, den Allgemeinen Geschäftsbedingungen, den Hinweisen zum Datenschutz und nutzungsbasierter Online-Werbung.