

DR Immobilien & Partners GmbH
Herr Dennis Richarz
084 ···
Nr. anzeigenPreise & Kosten
Provision für Käufer
1,99 % (inkl. MwSt.)
Lage
Hitzhofen ist eine kleine Gemeinde im Herzen des Altmühltals. Alle Geschäfte des täglichen Bedarfs (Edeka, Bäckerei, Metzger, Tankstelle) befinden Sie im benachbarten Eitensheim, nur 5 Fahrminuten entfernt. Ebenso erreichen Sie in ca. 20 Fahrminuten auf dem einfachsten Weg, über die B13, Ingolstadt oder Eichstätt. Hier finden...
Das Haus
Baujahr
1985
Bezug
Nach Vereinbarung
Energie & Heizung
Warum sehe ich diese Anzeige? – Du siehst diese Anzeige basierend auf Ihrer Navigation auf unserer Website und den Suchkriterien, die du verwendet hast.
Weitere Energiedaten
Heizungsart
Zentralheizung
Details
Objektbeschreibung
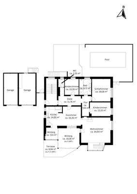
Zum Verkauf steht ein großzügiges Zweifamilienhaus mit zwei separaten Wohneinheiten sowie einer zusätzlichen Gewerbeeinheit im Untergeschoss. Das im Jahr 1985 errichtete Gebäude befindet sich auf einem 1.170?m² großen Grundstück. Der Bodenrichtwert (Stand 2024) beträgt 550?€/m², woraus sich ein Bodenwert von rund 643.500?€...
Ausstattung
+ ZFH mit zwei großen Wohneinheiten und einer Gewerbeeinheit im KG
+ Renovierung 2008: Fenster, Dämmung, Solarthermie, Pool
+ Heizung von 2010
+ ökologischer Umbau des 1. OG mit Lehmbauplatten, -putz und -farbe
+ großzügige Einfahrt und zwei Einzelgaragen
+ überdachter Pool und kleiner Teich
+ Gartenhäuschen...
Preisinformation
2 Garagenstellplätze
Weitere Informationen
Sonstiges
Die Vermittlung dieser Immobilie erfolgt exklusiv durch DR Immobilien & Partners GmbH. Mit der Anfrage bei und durch Inanspruchnahme der Dienstleistung der Firma DR Immobilien & Partners GmbH, wird ein Maklervertrag geschlossen. Vom Käufer ist eine Vermittlungsprovision in Höhe von 1,99 % (inkl. 19 %...
Anbieter der Immobilie
DR Immobilien & Partners GmbH
Milchstraße 9, 85049 Ingolstadt

Online-ID: 2n3et5t
Referenznummer: DRI-171626
Finde Angebote wie dieses
Hier geht es zu unserem Impressum, den Allgemeinen Geschäftsbedingungen, den Hinweisen zum Datenschutz und nutzungsbasierter Online-Werbung.