
Antaris Immobilien GmbH
Frau Nadja Schilg
+49 ···
Nr. anzeigenPreise & Kosten
Provision für Mieter
2,38 Monatsmieten vom Mieter inkl. MwSt.
Warum sehe ich diese Anzeige? – Du siehst diese Anzeige basierend auf Ihrer Navigation auf unserer Website und den Suchkriterien, die du verwendet hast.
Lage
Das attraktive Neubauprojekt befindet sich in einer der gefragtesten Lagen im begehrten Stadtteil Löbervorstadt in Erfurt. Der Steigerwald und auch der Südpark befinden sich in unmittelbarer Nachbarschaft.
Das Bauprojekt Lingel Quartier umfasst insgesamt 307 Wohnungen, 7 Gewerbeeinheiten in den Erdgeschossen und einen...
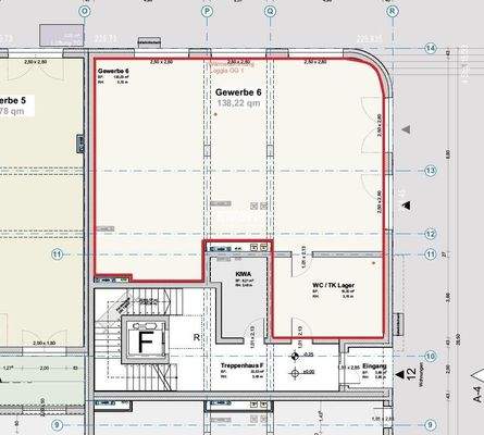
Die Ladenfläche
Baujahr
2024
Energie & Heizung
Warum sehe ich diese Anzeige? – Du siehst diese Anzeige basierend auf Ihrer Navigation auf unserer Website und den Suchkriterien, die du verwendet hast.
Wärme
Energieausweistyp
Bedarfsausweis
Gebäudetyp
Nicht-Wohngebäude
Baujahr laut Energieausweis
2020
Wesentliche Energieträger
Fernwärme, KWK erneuerbar, Luft/Wasser-Wärmepumpe
Gültigkeit
21.06.2024 bis 21.06.2034
Endenergiebedarf (Wärme)
54,00 kWh/(m²·a)
Details
Objektbeschreibung
Auf dem neuen Lingel Gelände entstehen sieben exklusive Gewerbeeinheiten und ein Büroturm. Zum Büroturm gibt es aufgrund der Eigentumsverhältnisse ein separates Exposé. Diese vielseitigen Gewerbeeinheiten sind ideal für Unternehmen, die von einer zentralen Lage und einem dynamischen Umfeld profitieren...
Ausstattung
Die 7 Gewerbeeinheiten im Erdgeschoss der Häuser 1, 2 und 3 können flexibel übernommen werden:
Rohbau:
Geeignet für Unternehmen, die ihre Räumlichkeiten nach eigenen Vorstellungen gestalten möchten.
Teilausbau:
Auch ein Teilausbau kann individuell vereinbart werden.
Schlüsselfertig:
Komplett...
Weitere Informationen
Sonstiges
Provision
Der Maklervertrag mit der antaris Immobilien GmbH kommt entweder durch eine schriftliche Vereinbarung oder durch die Inanspruchnahme unserer Maklertätigkeit auf Basis der Anforderung des Objekt-Exposés und der beinhalteten Bestimmungen zustande (siehe auch AGB). Für den Nachweis und/oder die...
Anbieter der Immobilie
Online-ID: 2n3el5j
Referenznummer: P253005/G1/Eh13
Finde Angebote wie dieses
Hier geht es zu unserem Impressum, den Allgemeinen Geschäftsbedingungen, den Hinweisen zum Datenschutz und nutzungsbasierter Online-Werbung.