

Kuthan-Immobilien
Frau Monika Thiele
+49 ···
Nr. anzeigenPreise & Kosten
Provision für Käufer
3,57 %
Der Käufer zahlt im Erfolgsfall an die Firma KUTHAN-IMMOBILIEN eine Käufer-Maklerprovision in Höhe von 3,57 % inkl. 19 % gesetzliche MwSt. Die Provision errechnet sich aus dem beurkundeten Kaufpreis.
Lage
Viernheim ist eine mittlere Stadt nordöstlich von Mannheim, im Wirtschaftsraum Metropolregion Rhein-Neckar. Sie ist mit rund 34.000 Einwohnern die zweitgrößte Stadt im südhessischen Kreis Bergstraße. Diverse Naherholungsgebiete bieten sich für Ausflüge an. Die Nähe zu Mannheim, Weinheim und Heidelberg erweitern das...
Büro-/Praxisfläche
Baujahr
1939
Bezug
kurzfristig
Energie & Heizung
Warum sehe ich diese Anzeige? – Du siehst diese Anzeige basierend auf Ihrer Navigation auf unserer Website und den Suchkriterien, die du verwendet hast.
Energieausweistyp
Bedarfsausweis
Gebäudetyp
Nicht-Wohngebäude
Wesentliche Energieträger
Öl
Gültigkeit
08.10.2025 bis 08.10.2035
Endenergiebedarf
484,00 kWh/(m²·a)
Weitere Energiedaten
Energieträger
Öl
Heizungsart
Zentralheizung
Details
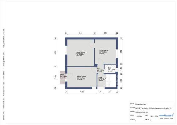
Objektbeschreibung
Verlieben Sie sich in dieses freistehende Einfamilienhaus mit Hinterhaus, Nebengebäuden, wie Werkstatt, Lagerraum etc. für Handwerksbetriebe ideal. Der große Garten ergänzt das komplette Angebot mit vielseitigen Nutzungsmöglichkeiten. alles mitten in Viernheim gelegen. (Baujahr 1939, Vorderhaus ca. 106 m² Wohnfläche, zzgl...
Ausstattung
HAUS
Freistehendes Einfamilienhaus in massiver Bauweise (Baujahr 1939) mit separatem Hinterhaus, im Dachgeschoss ausgebaut als Wohneinheit.
FENSTER
Weiße Fenster mit 2-fach-Isolierverglasung, von ca. 1985, im Hinterhaus teils ältere Fenster.
BODENBELAG
Teils Fliesen, teils Laminat.
BÄDER
Im...
Preisinformation
1 Garagenstellplatz
Weitere Informationen
Sonstiges
Wir über uns
Kuthan-Immobilien ist seit über 37 Jahren Meine Nr. 1 für tausende zufriedener Kunden. Von der Redaktion des Focus wurden wir wiederholt zum Topmakler, so auch 2025, gekürt.
Wir begreifen jeden Auftrag als persönliche Herausforderung und engagieren uns für die Immobilie unserer Kunden...
Anbieter der Immobilie

Online-ID: 2n3e35g
Referenznummer: MTH 4022
Finde Angebote wie dieses
Hier geht es zu unserem Impressum, den Allgemeinen Geschäftsbedingungen, den Hinweisen zum Datenschutz und nutzungsbasierter Online-Werbung.