
ohne-makler.net - Immobilien selbst vermarkten
Privat vom Eigentümer
Kontaktiere den Anbieter schriftlich, es ist keine Telefonnummer hinterlegt.
Preise & Kosten
Provision für Käufer
provisionsfrei
Lage
Lage:
Die Georg-Mayer-Straße liegt in einer ruhigen Wohngegend von Roth mit guter Infrastruktur. Einkaufsmöglichkeiten, Schulen, öffentliche Verkehrsmittel und Grünflächen sind bequem erreichbar. Die Anbindung an Nürnberg ist hervorragend - ideal auch für Pendler.
Infrastruktur (im Umkreis von 5 km):
Apotheke...
Die Wohnung
Wohnungslage
1. Geschoss
Bezug
sofort
Wohnanlage
Energie & Heizung
Warum sehe ich diese Anzeige? – Du siehst diese Anzeige basierend auf Ihrer Navigation auf unserer Website und den Suchkriterien, die du verwendet hast.
Energieausweistyp
Bedarfsausweis
Gebäudetyp
Wohngebäude
Effizienzklasse
E
Endenergiebedarf
146,00 kWh/(m²·a)
Weitere Energiedaten
Energieträger
Öl
Heizungsart
Zentralheizung
Details
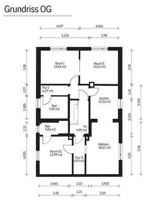
Objektbeschreibung
Willkommen in Ihrem neuen Zuhause oder Ihrer nächsten Kapitalanlage: Diese stilvoll modernisierte 4-Zimmer-Wohnung mit ca. 98?m² Wohnfläche im 1. Obergeschoss überzeugt durch durchdachte Raumaufteilung, hochwertige Sanierung und vielseitige Nutzungsmöglichkeiten. Sie befindet sich in einem gepflegten Mehrfamilienhaus in...
Ausstattung
Garten, Keller, Duschbad, Gäste-WC, Laminat
Bemerkungen:
Ein besonderes Highlight: Dank der gespiegelten Küchenanschlüsse lässt sich die Wohnung bei Bedarf auch in zwei separate Einheiten aufteilen - ideal für Mehrgenerationenwohnen, Teilvermietung oder Homeoffice mit separatem Zugang.
Weitere Informationen
Sonstiges
Heizungsart: Zentralheizung
Energieträger: Öl
Makleranfragen nicht erwünscht. Nach § 7 UWG sind unaufgeforderte Kontaktaufnahmen durch Makler ohne ausdrückliche Einwilligung des Empfängers verboten!
ohne-makler (OM) ist weder Anbieter noch Vermittler der Immobilie. OM betreibt eine Plattform...
Dokumente
Anbieter der Immobilie
ohne-makler.net - Immobilien selbst vermarkten
Humboldtstr. 25 A, 21509 Glinde
Privat vom Eigentümer
Dein Ansprechpartner
Kontaktiere den Anbieter schriftlich, es ist keine Telefonnummer hinterlegt.
Online-ID: 2n3bh5a
Referenznummer: 377348
Finde Angebote wie dieses
Hier geht es zu unserem Impressum, den Allgemeinen Geschäftsbedingungen, den Hinweisen zum Datenschutz und nutzungsbasierter Online-Werbung.