
Aigner Immobilien GmbH
Frau Doris Gattermann
+49 ···
Nr. anzeigenPreise & Kosten
Provision für Käufer
3,57% inkl. MwSt.
Die Käuferprovision beträgt 3,57% inkl. gesetzlicher Mehrwertsteuer vom wirtschaftlichen Kaupreis. Unsere Angebote erfolgen freibleibend und unverbindlich.
Irrtum und Zwischenverkauf bleiben vorbehalten.
Lage
Das Haus befindet sich in der begehrten und ruhigen Gemeinde Grünwald, die für ihre hohe Lebensqualität und naturnahe Umgebung bekannt ist. Grünwald zählt zu den exklusivsten Wohnlagen im Münchener Umland und bietet eine perfekte Kombination aus ländlichem Charme und urbaner Nähe. Nur wenige Kilometer von der Münchener...
Das Haus
Kategorie
Einfamilienhaus
Baujahr
1952
Bezug
sofort
Energie & Heizung
Warum sehe ich diese Anzeige? – Du siehst diese Anzeige basierend auf Ihrer Navigation auf unserer Website und den Suchkriterien, die du verwendet hast.
Energieausweistyp
Bedarfsausweis
Gebäudetyp
Wohngebäude
Baujahr laut Energieausweis
1952
Gültigkeit
bis 05.11.2035
Endenergiebedarf
170,66 kWh/(m²·a)
Weitere Energiedaten
Energieträger
Fernwärme
Heizungsart
Zentralheizung
Details
Objektbeschreibung
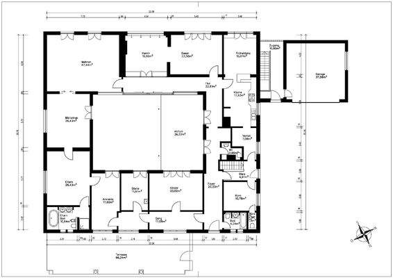
Der Atriumbungalow aus den 1950er Jahren im mondänen Grünwald, zentral jedoch ruhig gelegen direkt am Isarhochufer sucht neue Liebhaber.
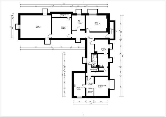
Eingebettet in einem Grundstück von ca. 1.528 m² findet sich ein Gebäude mit einer unglaublichen Wohnfläche von ca. 381 m². Der barrierefreie Bungalow hat insgesamt 10 Zimmer und lässt...
Ausstattung
Grundstück mit ca. 1.528m²
Atriumbungalow mit ca. 381 m², barrierefrei
Traumhafte Lage nahe dem Isarhochufer
Getrennte Eingangsbereiche
Große Küche mit Zugang zur Terrasse und angrenzendem Vorratsraum
Büro mit Gästetoilette
Lichtdurchflutete Diele und Gang
Bodentiefe Schiebetüren und Fenster zum...
Weitere Informationen
Sonstiges
Heizungsart: Zentralheizung
Energiekennwert: 170,66 kWh/(m²*a)
Energieausweistyp: Bedarfsausweis
Befeuerung/Energieträger: Fernwärme
Baujahr: 1952
Energieeffizienzklasse: F
Zu unseren Marktberichten - https://aigner-immobilien.de/marktinformationen/
Mehr Bilder und Infos hier -...
Anbieter der Immobilie
Aigner Immobilien GmbH
Ruffinistraße 26, 80637 München
Online-ID: 2n3ay5s
Referenznummer: 42861
Finde Angebote wie dieses
Hier geht es zu unserem Impressum, den Allgemeinen Geschäftsbedingungen, den Hinweisen zum Datenschutz und nutzungsbasierter Online-Werbung.