
Robert C. Spies Immobilien im Bremer Norden GmbH
Frau Maike Stelljes
+49 ···
Nr. anzeigenPreise & Kosten
Provision für Käufer
3,57% inkl. gesetzl. MwSt. vom beurkundeten Kaufpreis
Provisionpflichtig für den Käufer!
Unsere Objektangaben basieren auf den uns erteilten Informationen. Eine Haftung für die Richtigkeit und Vollständigkeit können wir deshalb nicht übernehmen.
Lage
Das angebotene Einfamilienhaus befindet sich in ruhiger und familienfreundlicher Wohnlage von Bremen-Rekum. Geschäfte des täglichen Bedarfs sowie Ärzte, Apotheken und weitere Einkaufsmöglichkeiten befinden sich in der Nähe. Kindergärten und Schulen sind zu Fuß schnell zu erreichen. Die Anbindung an die Autobahnen A 270 und A...
Das Haus
Kategorie
Einfamilienhaus
Baujahr
1900
Energie & Heizung
Warum sehe ich diese Anzeige? – Du siehst diese Anzeige basierend auf Ihrer Navigation auf unserer Website und den Suchkriterien, die du verwendet hast.
Energieausweistyp
Bedarfsausweis
Gebäudetyp
Wohngebäude
Wesentliche Energieträger
Gas
Gültigkeit
seit 17.11.2025
Effizienzklasse
G
Endenergiebedarf
215,28 kWh/(m²·a)
Weitere Energiedaten
Heizungsart
Zentralheizung
Details
Ausstattung
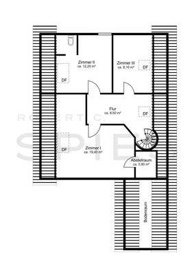
Das angebotene Einfamilienhaus wurde um 1900 errichtet und ungefähr Ende der 70er Jahre um einen Dachgeschossausbau erweitert. Insgesamt verteilen sich etwa 143 m² Wohnfläche auf 5 Zimmer. Aufgrund der Raumaufteilung ist eine ebenerdige Bewohnbarkeit des Einfamilienhauses möglich. Wenngleich die Immobilie von den Verkäufern...
Weitere Informationen
Sonstiges
Das Baujahr des Wohnhauses wird auf um 1900 geschätzt.
Anbieter der Immobilie
Online-ID: 2n3aq5s
Referenznummer: 34129/1
Finde Angebote wie dieses
Hier geht es zu unserem Impressum, den Allgemeinen Geschäftsbedingungen, den Hinweisen zum Datenschutz und nutzungsbasierter Online-Werbung.