

Immobilien Hobrecht
Herr Gerd Hobrecht
017 ···
Nr. anzeigenPreise & Kosten
Provision für Käufer
Die Maklerprovision in Höhe von 3,57 vom Kaufpreis (inkl. MwSt.) ist nach Abschluss des notariellen Kaufvertrages verdient und fällig.
Lage
Bergdorf im Husrück
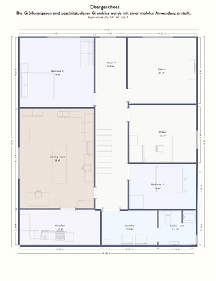
Das Haus
Kategorie
Bauernhaus
Baujahr
1963
Bezug
sofort
Energie & Heizung
Warum sehe ich diese Anzeige? – Du siehst diese Anzeige basierend auf Ihrer Navigation auf unserer Website und den Suchkriterien, die du verwendet hast.
Energieausweistyp
Bedarfsausweis
Gebäudetyp
Wohngebäude
Baujahr laut Energieausweis
1964
Wesentliche Energieträger
Oel
Gültigkeit
bis 22.03.2036
Effizienzklasse
H
Endenergiebedarf
287,16 kWh/(m²·a)
Weitere Energiedaten
Energieträger
Holz, Öl
Heizungsart
Zentralheizung
Details
Objektbeschreibung
Wohnhaus in ruhiger Lage
Die Immobilie bietet sehr viele Möglichkeiten
Das Anwesen befindet sich im Hunsrück in der idyllischen Gemeinde Berglicht.
Die umliegende Landschaft und der Ort ist durch Landwirtschaft und Natur geprägt.
Der Ort liegt im Landkreis Bernkastel-Kues - Wittlich und gehört zur VBG...
Ausstattung
Neuer Energieausweis ist bestellt und wird nachgeliefert.
Weitere Informationen
Sonstiges
Die Maklerprovision in Höhe von 3,57 vom Kaufpreis (inkl. MwSt.) ist nach Abschluss des notariellen Kaufvertrages verdient und fällig.
Heizungsart:
Heizkoerper
Dokumente
Anbieter der Immobilie

Online-ID: 2n39k5w
Finde Angebote wie dieses
Hier geht es zu unserem Impressum, den Allgemeinen Geschäftsbedingungen, den Hinweisen zum Datenschutz und nutzungsbasierter Online-Werbung.