
Crozilla.com
Materra Real Estate
+38 ···
Nr. anzeigenPreise & Kosten
Provision für Käufer
Bitte beachte, das Angebot kann bei Vertragsabschluss die Zahlung einer Provision beinhalten. Weitere Informationen erhältst Du vom Anbieter.
Wohnanlage
Details
Objektbeschreibung
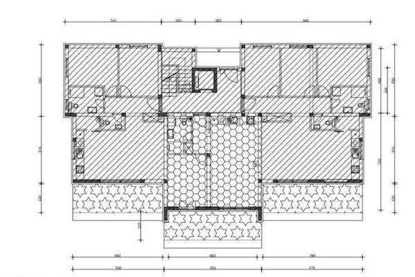
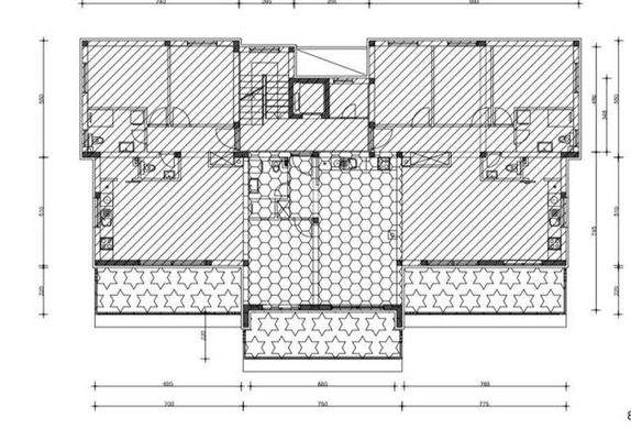
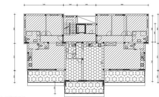
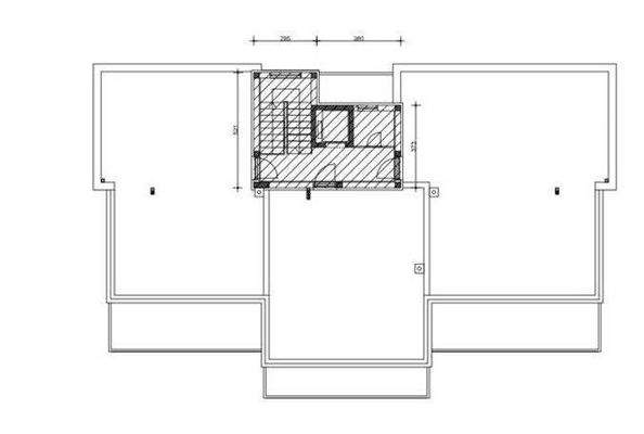
Zum Verkauf stehen 9 Wohneinheiten in einem modern gestalteten Gebäude, das in einem ruhigen und attraktiven Teil des Ortes liegt. Das Gebäude besteht aus vier Etagen mit insgesamt neun Luxuswohnungen und verfügt über einen Aufzug, der zusätzlichen Komfort bietet.
Zu jeder Wohneinheit gehört ein eigener Parkplatz, der...
Weitere Informationen
Stichworte
Anzahl der Schlafzimmer: 1, Anzahl der Badezimmer: 1, 1 Etagen
Anbieter der Immobilie
Crozilla.com
Nova cesta 60, 10000 ZAGREB
Online-ID: 2n38n5z
Referenznummer: 19437179_2
Finde Angebote wie dieses
Hier geht es zu unserem Impressum, den Allgemeinen Geschäftsbedingungen, den Hinweisen zum Datenschutz und nutzungsbasierter Online-Werbung.