
Crozilla.com
Premium SM d.o.o.
+38 ···
Nr. anzeigenPreise & Kosten
Provision für Käufer
Bitte beachte, das Angebot kann bei Vertragsabschluss die Zahlung einer Provision beinhalten. Weitere Informationen erhältst Du vom Anbieter.
Die Wohnung
Wohnungslage
2. Geschoss
Wohnanlage
Details
Objektbeschreibung
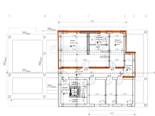
Vrbnik, Insel Krk, Neubau - Penthouse im zweiten Obergeschoss einer Stadtvilla mit panoramischem Meerblick zu verkaufen.
Das Penthouse befindet sich im zweiten Obergeschoss einer modernen Neubau-Stadtvilla mit insgesamt drei Wohneinheiten in Vrbnik auf der Insel Krk. Die Luftlinie zum Meer beträgt etwa 400...
Weitere Informationen
Stichworte
Anzahl der Schlafzimmer: 3, Anzahl der Badezimmer: 3, 1 Etagen
Anbieter der Immobilie
Crozilla.com
Nova cesta 60, 10000 ZAGREB
Online-ID: 2n37h5s
Referenznummer: 19495201_0
Finde Angebote wie dieses
Hier geht es zu unserem Impressum, den Allgemeinen Geschäftsbedingungen, den Hinweisen zum Datenschutz und nutzungsbasierter Online-Werbung.