
Pienzenauer Immobilien
Herr Dieter Adams
015 ···
Nr. anzeigenPreise & Kosten
Provision für Käufer
3,57 % inkl. MwSt.
Abschreibung/Anlage
Denkmalschutz-Afa
Lage
Der südliche Münchner Stadtteil Solln, zählt zu den exklusivsten und begehrtesten Wohnlagen der Landeshauptstadt. Insbesondere die Prinz-Ludwig-Höhe - eine historische Villenkolonie - besticht durch ihre prachtvollen Anwesen, die ruhige, grüne Umgebung und ihre unvergleichliche Lebensqualität.
Das Viertel bietet eine...
Die Wohnung
Kategorie
Maisonette
Bezug
ab sofort
Wohnanlage
Energie & Heizung
Warum sehe ich diese Anzeige? – Du siehst diese Anzeige basierend auf Ihrer Navigation auf unserer Website und den Suchkriterien, die du verwendet hast.
Energieausweis: für diesen Gebäudetyp nicht notwendig
Weitere Energiedaten
Heizungsart
Luft-/Wasser-Wärmepumpe, offener Kamin, Zentralheizung
Details
Objektbeschreibung
Diese beeindruckende Maisonettewohnung ist ein beeindruckendes Immobilienunikat, wie es in München nur selten zu finden ist.
Eingebettet in die renommierte Villenkolonie der Prinz-Ludwig-Höhe im südlichen Stadtteil Solln, vereint sie historische Eleganz mit modernem Wohnkomfort.
Die Wohnung befindet sich in einem...
Ausstattung
Wohnungsdetails
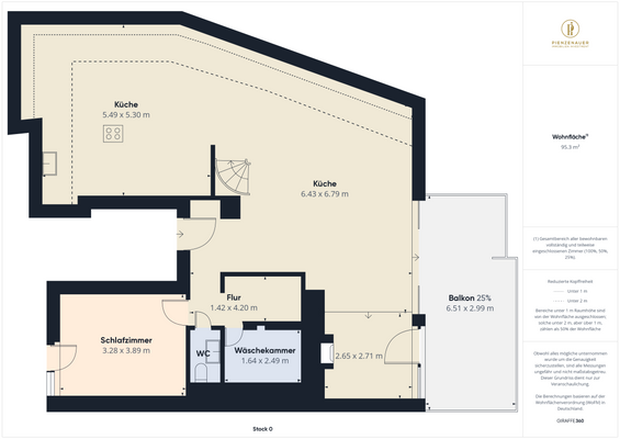
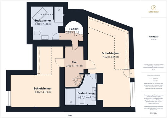
. Zimmer/Räume: 5 plus zwei Abstellräume
. Wohn-/Nutzfläche: ca. 180 m²
. Etagenanzahl: 3
. Baujahr: 1980 (Denkmalschutzobjekt)
. Heizungsart: Zentralheizung plus Wärmepumpe
. Bezugstermin: kurzfristig
. Stellplatz: 2 Duplex-Stellplätze
. Wohngeld: € 1.007,00...
Preisinformation
2 Tiefgaragenstellplätze, Kaufpreis je: 25.000,00 EUR
Weitere Informationen
Sonstiges
Objektvideo - https://www.instagram.com/p/DFVdlIzIM4n/
Stichworte
Tiefgarage vorhanden, Breitband Zugang mit 1000 Mbit/Sec, Anzahl der Schlafzimmer: 4, Anzahl der Badezimmer: 2, Anzahl der separaten WCs: 1, Anzahl Balkone: 1, Anzahl Terrassen: 1, Anzahl Loggias: 1, Bundesland: Bayern, 3 Etagen...
Anbieter der Immobilie
Online-ID: 2n36v5v
Referenznummer: 10604
Finde Angebote wie dieses
Weitere Immobilien
Hier geht es zu unserem Impressum, den Allgemeinen Geschäftsbedingungen, den Hinweisen zum Datenschutz und nutzungsbasierter Online-Werbung.