
Immobiliengruppe Peter Kittlaus GmbH
Herr Walter Lindenstreich
004 ···
Nr. anzeigenPreise & Kosten
Provision für Mieter
3,57 zzgl. MwSt.
Warum sehe ich diese Anzeige? – Du siehst diese Anzeige basierend auf Ihrer Navigation auf unserer Website und den Suchkriterien, die du verwendet hast.
Lage
Zentraler geht es nicht! Diese einzigartige Büroetage liegt in attraktiver Lage von Siegburg. Hier arbeiten Sie in ruhiger Lage im Herzen von Siegburg, in nur ca. 150 Meter vom Marktplatz entfernt.
Öffentliche Verkehrsmittel wie Busse, S-Bahn mit Verbindung nach Köln /Bonn und der ICE-Bahnhof liegen direkt gegenüber vom...
Büro-/Praxisfläche
Kategorie
Bürogebäude
Baujahr
1896
Energie & Heizung
Warum sehe ich diese Anzeige? – Du siehst diese Anzeige basierend auf Ihrer Navigation auf unserer Website und den Suchkriterien, die du verwendet hast.
Weitere Energiedaten
Energieträger
Gas
Details
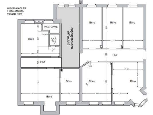
Objektbeschreibung
Die Büroetage befindet sich in der 1. Etage eines
denkmalgeschützten Gründerzeithauses mit Türmchen, Stuck,
Erker und kleinem Balkon.
Sie ist durch das Treppenhaus unterteilt. Im linken Teil, gehen
vom Flur rechts drei gleiche Räume, mit frisch aufgearbeitetem
Parkettboden, ab. Rechts vom Flur kommt man zu zwei...
Ausstattung
Die Büroetage wurde gerade renoviert, d. h., neuer Wand- und
Türenanstrich, sowie die Aufarbeitung des Parketts und das
Verlegen von Klebevinyl.
- Fertigparkettboden
- Klebevinyl
- Gasheizung
- Befeuerung: Gas
-DerGlasfaseranschluss ist vorbereitet
Weitere Informationen
Sonstiges
Gerne können Sie sich auf unserer Homepage noch ausführlicher über dieses Objekt informieren - klicken Sie dazu einfach auf den untenstehenden Link.https://www.immobilien-kittlaus.de/immobilien/renovierte-bueroetage-in-schoenem-gruenderzeithaus-in-bester-lage/
Stichworte
Gesamtfläche: 160,00 m², Distanz...
Anbieter der Immobilie
Online-ID: 2n34q5f
Referenznummer: 722
Finde Angebote wie dieses
Hier geht es zu unserem Impressum, den Allgemeinen Geschäftsbedingungen, den Hinweisen zum Datenschutz und nutzungsbasierter Online-Werbung.