
Walser Residential GmbH
Herr Markus Hallmann
004 ···
Nr. anzeigenPreise & Kosten
Provision für Käufer
provisionsfrei
Lage
Die familienfreundliche Umgebung überzeugt mit ausgezeichneter Infrastruktur. Einkaufsmöglichkeiten, darunter Supermärkte, sind fußläufig erreichbar. Ein wöchentlicher Bauernmarkt bietet frische regionale Produkte. Kitas, Schulen und die Bücherei befinden sich in unmittelbarer Nähe. Parks und Spielplätze laden zu vielfältigen...
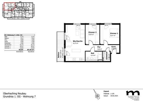
Die Wohnung
Wohnungslage
1. Geschoss
Bezug
vrstl. Ende 2027
Wohnanlage
Energie & Heizung
Warum sehe ich diese Anzeige? – Du siehst diese Anzeige basierend auf Ihrer Navigation auf unserer Website und den Suchkriterien, die du verwendet hast.
Energieausweistyp
Bedarfsausweis
Gebäudetyp
Wohngebäude
Baujahr laut Energieausweis
2025
Wesentliche Energieträger
FERN
Gültigkeit
bis 26.05.2035
Effizienzklasse
A
Endenergiebedarf
46,30 kWh/(m²·a)
Weitere Energiedaten
Energieträger
Fernwärme
Heizungsart
Zentralheizung
Details
Objektbeschreibung
***Gerne stehen wir Ihnen für eine Beratung flexibel nach Terminvereinbarung zur Verfügung! Terminvereinbarung unter: 089 / 66 59 60***
In der Ortsmitte von Oberhaching entsteht ein individueller Neubau umgeben von altem Baumbestand. Die großzügige 3-Zimmer Etagenwohnung ist ein wahres Juwel! Neben dem geräumigen...
Ausstattung
Highlights:
- NEU: Jetzt noch GÜNSTIGERES KfW Darlehen:
KfW 40 QNG: € 150.000,-- ab 0,60 % effektiv Zins, 10 Jahre fest, 100 % Auszahlung gemäß PAngV (Stand 04.03.2026)
- Baubeginn im Januar 2026 erfolgt! Bereits über 60% verkauft!
- Individuelles Ensemble mit nur 20 Wohnungen
- Zentrale Lage in der...
Preisinformation
1 Tiefgaragenstellplatz, Kaufpreis: 27.900,00 EUR
Weitere Informationen
Sonstiges
Hinweis zum Energieausweis:
Das Objekt befindet sich noch im Bau/Planung, der endgültige Energieausweis liegt noch nicht vor.
Stichworte
Anzahl der Schlafzimmer: 2, Anzahl der Badezimmer: 1, Anzahl der separaten WCs: 1, Anzahl Balkone: 1
Anbieter der Immobilie
Walser Residential GmbH
Bruderstr. 5a, 80538 München
Online-ID: 2n32y59
Referenznummer: 16927
Finde Angebote wie dieses
Weitere Immobilien
Hier geht es zu unserem Impressum, den Allgemeinen Geschäftsbedingungen, den Hinweisen zum Datenschutz und nutzungsbasierter Online-Werbung.