
Soller Immobilien Diplom-Sachverständiger (DIA)
Herr Rainer Soller
042 ···
Nr. anzeigenPreise & Kosten
Provision für Käufer
Courtagehinweis: 3,57 % Käuferprovision inkl. MwSt., verdient und fällig mit Beurkundung des notariellen Kaufvertrages. Der Immobilienmakler hat einen provisionspflichtigen Maklervertrag mit dem Verkäufer in gleicher Höhe abgeschlossen.
Lage
Lage: Beliebte Wohnlage in Bremen-Vegesack, in einer ruhigen Spielstraße
Infrastruktur: Vegesacker Fußgängerzone fußläufig erreichbar; gute Anbindung an Bremen-Nord
Freizeit/Umfeld: Hafen, Walkiefer, Stadtgarten Weserpromenade, Utkiek; maritimes Flair, vielfältige Gastronomie, Grün- und...
Das Haus
Kategorie
Mehrfamilienhaus
Geschosse
3 Geschosse
Baujahr
1900
Bezug
Frei werdendend
Energie & Heizung
Warum sehe ich diese Anzeige? – Du siehst diese Anzeige basierend auf Ihrer Navigation auf unserer Website und den Suchkriterien, die du verwendet hast.
Energieausweistyp
Verbrauchsausweis
Gebäudetyp
Wohngebäude
Baujahr laut Energieausweis
1900
Wesentliche Energieträger
Öl
Gültigkeit
19.02.2019 bis 18.02.2029
Effizienzklasse
G
Endenergieverbrauch
227,60 kWh/(m²·a)
Weitere Energiedaten
Energieträger
Öl
Heizungsart
Zentralheizung
Details
Objektbeschreibung
Objektbeschreibung
Grunddaten
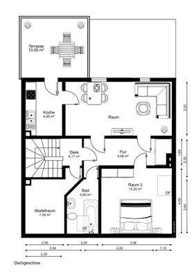
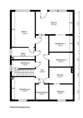
Gesamtwohnfläche: ca. 270 m²
Grundstücksgröße: ca. 293 m²
Baujahr: ca. 1900
Heizung: Öl, Bj. 1996
Fenster: teilweise Holzfenster (Altbestand, Einfachverglasung) und ISO-Fenster (Isolierverglasung)
Teilungserklärung und Abgeschlossenheitsbescheinigung vorhanden
Zufahrt zum...
Weitere Informationen
Besonderheiten
Teilungserklärung und Abgeschlossenheitsbescheinigung vorhanden
Potenzial für Wertsteigerung durch Renovierung und energetische Aufrüstung
Geeignet für Anleger oder Eigennutzer, der Modernisierung bevorzugt
Stichworte
Sonstiges: Sanierungs-Afa
Dokumente
Anbieter der Immobilie

Soller Immobilien Diplom-Sachverständiger (DIA)
Reeder-Bischoff-Str. 23, 28757 Bremen
Online-ID: 2n32m5h
Finde Angebote wie dieses
Hier geht es zu unserem Impressum, den Allgemeinen Geschäftsbedingungen, den Hinweisen zum Datenschutz und nutzungsbasierter Online-Werbung.