

EDE INVEST GmbH & Co. KG
Frau Susanne Dettinger-Klemm
+49 ···
Nr. anzeigenPreise & Kosten
Provision für Käufer
3,57 % inkl. MwSt. (3,00 % netto) inkl. MwSt.
Lage
Im Südwesten Münchens, am östlichen Hochufer des idyllischen Würmtals, liegt dieses Anwesen in einer ruhigen Anliegerstraße der begehrten Villenkolonie von Gauting. Die Lage zählt zu den schönsten im Münchner Umland und verbindet charmantes Gartenstadt-Flair mit einer hervorragenden Infrastruktur.
Der Ortskern von...
Das Haus
Kategorie
Einfamilienhaus
Baujahr
2026
Bezug
Spätherbst 2027
Energie & Heizung
Warum sehe ich diese Anzeige? – Du siehst diese Anzeige basierend auf Ihrer Navigation auf unserer Website und den Suchkriterien, die du verwendet hast.
Energieausweistyp
Verbrauchsausweis
Gebäudetyp
Wohngebäude
Baujahr laut Energieausweis
2025
Wesentliche Energieträger
LUFTWP
Gültigkeit
bis 06.03.2035
Effizienzklasse
A
Endenergieverbrauch
49,90 kWh/(m²·a)
Weitere Energiedaten
Heizungsart
Fußbodenheizung, Luft-/Wasser-Wärmepumpe
Details
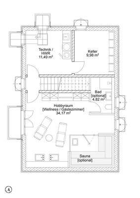
Objektbeschreibung
Lebensfreude mit Villencharakter
In einer der begehrtesten Straßen der Gautinger Villenkolonie entstehen zwei exklusive Einfamilienhäuser, die modernes Design mit klassischem Villenflair vereinen. Großzügige Grundrisse, hohe Decken und eine private Zufahrt schaffen ein außergewöhnliches Wohngefühl, das Individualität...
Ausstattung
- In Massivbauweise
- Ziegelmauerwerk mit 36,5 cm Außenwände
- Innenwände Ziegelmauerwerk/Trockenbauwand mit 17 cm bzw. 11,5 cm
- Dachflächenfenster von Velux o.a.
- Bodentiefe Fenster wo möglich
- Elektrische Rollläden
- Dreifach wärmeschutzverglaste Fenster
- Sanitäreinrichtungen von...
Preisinformation
1 Garagenstellplatz, Kaufpreis: 25.000,00 EUR
Weitere Informationen
Sonstiges
Alle in diesem Exposé verwendeten Angaben beruhen auf Informationen von Dritten (z.B. Eigentümer, Hausverwaltung, etc.) und daher freibleibend und ohne jegliche Gewähr. Zahlenangaben sind immer als ca-Angaben zu verstehen. Irrtum, Änderungen, Zwischenverkauf oder Zwischenvermietung bleiben vorbehalten. Die...
Anbieter der Immobilie
EDE INVEST GmbH & Co. KG
Bavariaring 18, 80336 München

Online-ID: 2n2v95n
Referenznummer: 3205_13
Finde Angebote wie dieses
Hier geht es zu unserem Impressum, den Allgemeinen Geschäftsbedingungen, den Hinweisen zum Datenschutz und nutzungsbasierter Online-Werbung.