
Ofner Immobilien GmbH
Herr Walter Ofner
+43 ···
Nr. anzeigenPreise & Kosten
Provision für Käufer
3% des Kaufpreises zzgl. 20% USt.
Lage
Vir Wohnung im modernen Neubau
Die Wohnung
Wohnanlage
Details
Objektbeschreibung
Eine schöne Wohnung zum Verkauf in einem modernen Neubau im Zentrum von Vir. Diese liegt nur 350 m vom Meer entfernt.
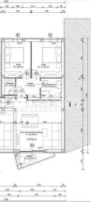
Es handelt sich um eine Wohnung im ersten Stock. Die Raumaufteilung besteht aus einem Flur, 2 Schlafzimmern, einem Badezimmer, einer Küche mit Esszimmer und einem Wohnzimmer und einer überdachten...
Weitere Informationen
Stichworte
Anzahl der Badezimmer: 1
Anbieter der Immobilie

Ofner Immobilien GmbH
Hauptstraße 86, 8582 ROSENTAL AN DER KAINACH
Online-ID: 2n2um5x
Referenznummer: OBGC202603171212207223a797dd8b1
Finde Angebote wie dieses
Hier geht es zu unserem Impressum, den Allgemeinen Geschäftsbedingungen, den Hinweisen zum Datenschutz und nutzungsbasierter Online-Werbung.