
Immo&Finanz Markus Büser
Herr Markus Büser
029 ···
Nr. anzeigenPreise & Kosten
Provision für Käufer
4,76 % inkl. MwSt.
Lage
Berndorf ist der nach Einwohnerzahl größte von insgesamt sieben Ortsteilen der Gemeinde Twistetal im nordhessischen Landkreis Waldeck-Frankenberg.
Berndorf hat im Ort folgendes zu bieten:
- Grundschule
- Kindergarten (direkt gegenüber auf der anderen Straßenseite; der Kinder-Hof befindet sich auf der Rückseite...
Das Haus
Kategorie
Mehrfamilienhaus
Baujahr
1900
Energie & Heizung
Warum sehe ich diese Anzeige? – Du siehst diese Anzeige basierend auf Ihrer Navigation auf unserer Website und den Suchkriterien, die du verwendet hast.
Energieausweistyp
Bedarfsausweis
Gebäudetyp
Wohngebäude
Baujahr laut Energieausweis
2002
Wesentliche Energieträger
Gas
Gültigkeit
23.02.2026 bis 22.02.2036
Effizienzklasse
H
Endenergiebedarf
331,70 kWh/(m²·a)
Weitere Energiedaten
Energieträger
Gas
Heizungsart
Zentralheizung
Details
Objektbeschreibung
Dieses idyllisch am Bach "Twiste" gelegene Zwei-Familienhaus bietet Ihnen die Möglichkeit, günstig auf ca. 120 qm Wohnfläche mit 3 Schlafzimmern zu wohnen. Ein Schlafzimmer davon muss noch ausgebaut werden. Weitere ca. 80 qm Fläche warten im Dachgeschoss darauf, dass sie ebenfalls ausgebaut werden. Je nach individuellem...
Ausstattung
wesentliche Ausstattungsmerkmale:
1900 ca.: Baujahr Alt-Bestand
1950 ca.: Anbau
1960 ca.: EG-Decke im Anbau-Trakt betoniert
1968 ca.: Grundriss-Änderung
1994: Kunststofffenster doppelt verglast im Anbau-Trakt (im Alt-Bestand Holzfenster doppelt verglast aus früherem Herstellungsjahr)
1994: Modernierung Bad...
Preisinformation
1 Stellplatz
1 Garagenstellplatz
Weitere Informationen
Sonstiges
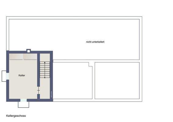
Unter der Rubrik "Dokumente" finden Sie die Grundrisse in groß und besserer Auflösung! Dafür müssen Sie das PDF-Dokument zum Öffnen einfach nur anklicken!
Habe ich Ihr Interesse geweckt?
Benötigen Sie eine Beratung bezüglich Ihrer Finanzierung? Dann können Sie hier alles aus einer Hand bekommen!
Ich...
Dokumente
Anbieter der Immobilie
Online-ID: 2n2th5z
Referenznummer: 694 (1/694)
Finde Angebote wie dieses
Hier geht es zu unserem Impressum, den Allgemeinen Geschäftsbedingungen, den Hinweisen zum Datenschutz und nutzungsbasierter Online-Werbung.