

Immo Heller
Herr Johannes Heller
+49 ···
Nr. anzeigenPreise & Kosten
Provision für Käufer
PROVISIONSFRFEI
Lage
Die Wohnlage liegt im Offenbacher Quartier Bachschule (Stadtteil Lindenfeld) - einem Gebiet, das aufgrund seiner ruhigen, gewachsenen Wohnumgebung und der Nähe zu Tempelsee besonders gefragt ist. Sie verbindet städtische Infrastruktur mit einem angenehmen, grünen Wohncharakter.
Die Anbindung an den öffentlichen...
Die Wohnung
Wohnungslage
Erdgeschoss
Bezug
sofort
Wohnanlage
Energie & Heizung
Warum sehe ich diese Anzeige? – Du siehst diese Anzeige basierend auf Ihrer Navigation auf unserer Website und den Suchkriterien, die du verwendet hast.
Energieausweistyp
Bedarfsausweis
Gebäudetyp
Wohngebäude
Wesentliche Energieträger
Fernwärme
Gültigkeit
10.03.2021 bis 09.03.2021
Effizienzklasse
B
Endenergiebedarf
65,00 kWh/(m²·a)
Weitere Energiedaten
Energieträger
Fernwärme
Heizungsart
Zentralheizung
Details
Objektbeschreibung
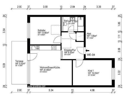
In der Elisabethenstraße in Offenbach bieten wir Ihnen eine 3-Zimmer-Eigentumswohnung mit rund 76 m² Wohnfläche, die durch ihre hochwertige Bauqualität und durchdachte Raumaufteilung überzeugt. Das 2021 fertiggestellte Wohnensemble verbindet zeitgemäße Architektur mit einer ruhigen, grünen Wohnumgebung und schafft so ein...
Preisinformation
1 Stellplatz
Weitere Informationen
Stichworte
Tiefgarage vorhanden, Anzahl der Schlafzimmer: 2, Anzahl der Badezimmer: 1, Anzahl Balkone: 1, 4 Etagen, modernisiert: 2021
Anbieter der Immobilie
Immo Heller
Eichhornstraße 4, 97070 Würzburg

Online-ID: 2n2tg5u
Referenznummer: 5511#H6tGt
Finde Angebote wie dieses
Weitere Immobilien
Hier geht es zu unserem Impressum, den Allgemeinen Geschäftsbedingungen, den Hinweisen zum Datenschutz und nutzungsbasierter Online-Werbung.