

Sommer Hanse Immobilien Projektentwicklung
Herr René Sommer
038 ···
Nr. anzeigenPreise & Kosten
Provision für Käufer
provisionsfrei
Lage
Nahezu zielstrebig scheint sich der Schweriner See – mit 62,9 km² viertgrößter Binnensee Deutschlands – von der Landeshauptstadt Mecklenburg-Vorpommerns.
Handelswege von Ost nach West und von Nord nach Süd kreuzten sich an dieser Stelle schon in grauer Vorzeit. Und auch heute noch sind die größeren Zentren des Handels, der...
Das Haus
Kategorie
Doppelhaushälfte
Baujahr
Neubau
Bezug
2026
Derzeitige Nutzung
frei
Energie & Heizung
Warum sehe ich diese Anzeige? – Du siehst diese Anzeige basierend auf Ihrer Navigation auf unserer Website und den Suchkriterien, die du verwendet hast.
Gebäudetyp
Wohngebäude
Weitere Energiedaten
Haustyp
KfW 40, Massivhaus
Heizungsart
Fußbodenheizung, Luft-/Wasser-Wärmepumpe
Details
Objektbeschreibung
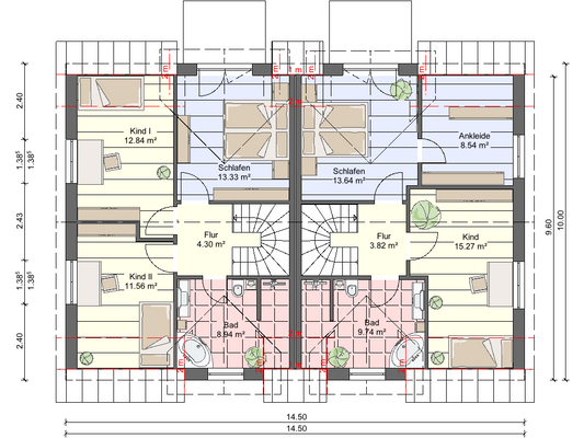
Eine Doppelhaushälfte zum Wohlfühlen. Sie sehen der ca. 115,04 m² Wohnfläche sofort an, dass hier Raum für individuelle Lebensgestaltung möglich ist. Das geräumige und gemütliche Wohnzimmer im Erdgeschoss mit den großen Glasflächen bietet viel Platz und Bewegungsfreiheit für die Familie. Die Aussicht ins Grüne auf die...
Ausstattung
Bauantrag, Statik und Wärmeschutznachweis,
massive Bauweise und Stahlbetonarbeiten, Holz und Dachdeckerarbeiten mit hochwertigen Tondachsteine, Wandsystem: einschaliges Mauerwerk in Porenbeton in 36,5 cm sowie einer hochwertigen Edelputzfassade, Fliesenarbeiten...
Weitere Informationen
Alle Fakten auf einem Blick
Haustyp: Doppelhaus
Typenhaus: D_Alpha_3
Geschosse: 1,5...
Anbieter der Immobilie
Sommer Hanse Immobilien Projektentwicklung
Kurzer Weg 14, 23970 Kritzow

Online-ID: 2n2tb5d
Referenznummer: 030226-116
Finde Angebote wie dieses
Hier geht es zu unserem Impressum, den Allgemeinen Geschäftsbedingungen, den Hinweisen zum Datenschutz und nutzungsbasierter Online-Werbung.