

WVW Wohnungsverwaltung - Bereich Immobilien -
Herr Frank J. Arnold
035 ···
Nr. anzeigenPreise & Kosten
nicht in Nebenkosten enthalten
Kaution
2460,00
Warum sehe ich diese Anzeige? – Du siehst diese Anzeige basierend auf Ihrer Navigation auf unserer Website und den Suchkriterien, die du verwendet hast.
Lage
Das Objekt befindet sich inmitten der historischen Altstadt von Pirna, 5 min entfernt vom Markt. Geschäfte, Restaurants und Arztpraxen sind fußläufig zu erreichen. Anfahrt mit dem Auto zum be- und entladen ist möglich (als Bewohner). Parkmöglichkeiten sind in den umliegenden Parkhäusern (Dauerparkkarte) oder in umliegenden...
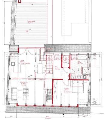
Die Wohnung
Kategorie
Maisonette
Wohnungslage
3. Geschoss (Dachgeschoss)
Bezug
sofort
Energie & Heizung
Warum sehe ich diese Anzeige? – Du siehst diese Anzeige basierend auf Ihrer Navigation auf unserer Website und den Suchkriterien, die du verwendet hast.
Energieausweis: für diesen Gebäudetyp nicht notwendig
Weitere Energiedaten
Energieträger
Elektro, Gas
Heizungsart
Luft-/Wasser-Wärmepumpe, Zentralheizung
Details
Objektbeschreibung
Denkmalgerecht saniertes Wohnhaus mit 3 Wohneinheiten in der Innenstadt von Pirna. Letzte freie Wohnung im Objekt. Im unteren Bereich befindet sich eine große offene Wohnküche, ein Wohnbereich, das Schlafzimmer, ein Bad mit Wanne, Dusche, 2 Waschbecken und einem Fenster. Des WC ist separat.
An den Wänden überwiegend...
Ausstattung
Maisonette Wohnung mit ca. 34 m² Terrasse, große offene Wohnküche, Wohnzimmer, Schlafzimmer, Zentralheizung, Telefonanschluss, TV-Anschluss, ASR und Galerie im OG, Bad mit Wanne, Dusche, 2x WB, WC, WM- Anschluss und Fenster, Gäste WC, Erstbezug nach denkmalgerechter Komplettsanierung
Weitere Informationen
Unsere Objektangaben basieren auf Informationen, die uns vom Eigentümer erteilt wurden. Eine Haftung für deren Richtigkeit und Vollständigkeit können wir deshalb nicht übernehmen. Zwischenvermietung und Änderungen bleiben vorbehalten. Angebot freibleibend.
Anbieter der Immobilie

Online-ID: 2n2sh5k
Referenznummer: BG19DGTEBSR
Finde Angebote wie dieses
Hier geht es zu unserem Impressum, den Allgemeinen Geschäftsbedingungen, den Hinweisen zum Datenschutz und nutzungsbasierter Online-Werbung.