

Raumgold Immobilien GmbH
+49 ···
Nr. anzeigenPreise & Kosten
Provision für Käufer
provisionsfrei
Lage
Das Haus befindet sich in ruhiger und bevorzugter Wohnlage in Rheinfelden. Die Umgebung ist geprägt von Wohnhäusern, viel Grün und einer angenehmen und freundlichen Nachbarschaftsatmosphäre.
Rheinfelden ist eine Stadt im Südwesten Baden-Württembergs, die am Hochrhein liegt und direkt an der Grenze zur Schweiz. Die...
Das Haus
Kategorie
Einfamilienhaus
Baujahr
1909
Bezug
per sofort
Energie & Heizung
Warum sehe ich diese Anzeige? – Du siehst diese Anzeige basierend auf Ihrer Navigation auf unserer Website und den Suchkriterien, die du verwendet hast.
Energieausweistyp
Verbrauchsausweis
Gebäudetyp
Wohngebäude
Wesentliche Energieträger
Gas
Gültigkeit
seit 05.01.2026
Effizienzklasse
E
Endenergieverbrauch
140,90 kWh/(m²·a) - Warmwasser enthalten
Weitere Energiedaten
Energieträger
Gas
Heizungsart
offener Kamin
Details
Objektbeschreibung
Dieses charmante Einfamilienhaus aus dem Baujahr 1909 verbindet klassischen Altbaucharakter mit einer durchdachten Raumaufteilung über mehrere Ebenen. Die liebevoll mit Efeu bewachsene Fassade unterstreicht den besonderen Charme des Hauses und verleiht ihm ein stimmungsvolles, nahezu zeitloses Erscheinungsbild. In den letzten...
Ausstattung
- Baujahr: 1909
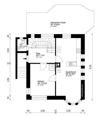
- Wohnfläche: ca. 143 m²
- Zimmeranzahl: 5 Zimmer
- Lage: Ruhige und begehrte Wohngegend
- Gute Verkehrsanbindung
- Naturboden - Keller
- Überdachter Freisitz
- Holzkamin
- Erker
Heizung: Gas-Heizung
Energieausweis: E
Ausstellungsdatum: 05.01.2026
Kaufpreis 620.000,-...
Weitere Informationen
Sonstiges
Immobilienbewertung - https://www.raumgold-immobilien.de/wp/immobilienbewertung/
Stichworte
Garage vorhanden, Stellplatz vorhanden, Anzahl der Schlafzimmer: 4, Anzahl der Badezimmer: 2, Anzahl Balkone: 1, Bundesland: Baden-Württemberg, 3 Etagen, modernisiert
Anbieter der Immobilie
Online-ID: 2n2se53
Referenznummer: RG-350
Finde Angebote wie dieses
Hier geht es zu unserem Impressum, den Allgemeinen Geschäftsbedingungen, den Hinweisen zum Datenschutz und nutzungsbasierter Online-Werbung.